Huis te koop in Sint-Lievens-Houtem met 2 slaapkamers
€ 336.000
Is dit haalbaar voor jou?Omschrijving
Nieuwbouwwoning met 2 slpk en tuin in Sint-Lievens-Houtem !
TROEVEN
- Open bebouwing omringd door een oase van groen
- Bijna-Energieneutrale nieuwbouwwoning
- Rustig gelegen
LIGGING
Deze woning is gelegen op een rustige locatie, waarbij sereniteit en een groene omgeving hand in hand gaan.
Het biedt u de unieke kans om te wonen in de pittoreske omgeving van de Vlaamse Ardennen.
Door deze locatie geniet u van een vlotte bereikbaarheid met zowel de wagen als met het openbaar vervoer.
INDELING
De woning zal voorzien worden van de laatste technieken zoals vloerverwarming via een warmtepomp (passieve koeling ook mogelijk) en zonnepanelen.
Daarnaast zal er een hoogwaardige afwerking voorzien worden en zal er gewerkt worden met kwalitatieve materialen.
U komt binnen in de inkomhal met plaats voor vestiaire en een gastentoilet.
Vervolgens loopt u door in de woonkamer met een open keuken en aanpalend een extra berging. Op deze manier biedt dit u voldoende ruimte voor het hele gezin.
Verder heeft u via de leefruimte toegang tot het terras en de tuin, waar u tot rust kan komen na een drukke werkdag.
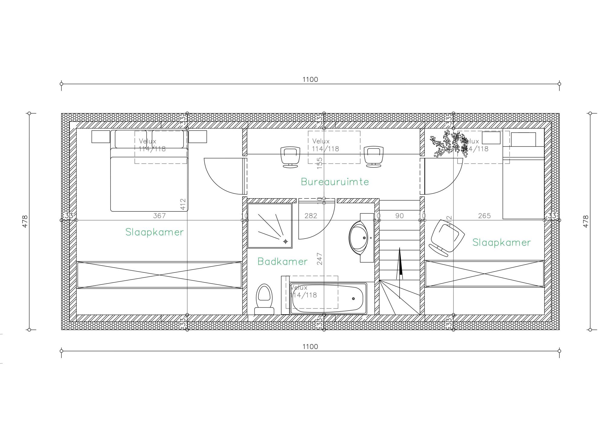
Op de verdieping heeft u via de nachthal/bureauruimte toegang tot de 2 slaapkamers en de badkamer, die voorzien is van alle comfort.
Tot slot beschikt u ook over private parkeerruimte die gelegen is naast de woning!
Aankoop onder 6%-BTW mogelijk, indien u voldoet aan de voorwaarden!
Nieuw voor investeerders : het 6% BTW-tarief geldt nu ook voor aankopen die gedurende 15 jaar verhuurd worden (onder de toepasselijke wettelijke voorwaarden). Dat verlaagt de aankoopkost en kan uw netto-rendement aanzienlijk verbeteren.
Contacteer Kevin voor meer info en/of een bezoek: 0476 66 55 50 !
(Sted. Inl. in aanvraag, foto's zijn referentiebeelden, maten en opp. zijn geraamd)
- Open bebouwing omringd door een oase van groen
- Bijna-Energieneutrale nieuwbouwwoning
- Rustig gelegen
LIGGING
Deze woning is gelegen op een rustige locatie, waarbij sereniteit en een groene omgeving hand in hand gaan.
Het biedt u de unieke kans om te wonen in de pittoreske omgeving van de Vlaamse Ardennen.
Door deze locatie geniet u van een vlotte bereikbaarheid met zowel de wagen als met het openbaar vervoer.
INDELING
De woning zal voorzien worden van de laatste technieken zoals vloerverwarming via een warmtepomp (passieve koeling ook mogelijk) en zonnepanelen.
Daarnaast zal er een hoogwaardige afwerking voorzien worden en zal er gewerkt worden met kwalitatieve materialen.
U komt binnen in de inkomhal met plaats voor vestiaire en een gastentoilet.
Vervolgens loopt u door in de woonkamer met een open keuken en aanpalend een extra berging. Op deze manier biedt dit u voldoende ruimte voor het hele gezin.
Verder heeft u via de leefruimte toegang tot het terras en de tuin, waar u tot rust kan komen na een drukke werkdag.
Op de verdieping heeft u via de nachthal/bureauruimte toegang tot de 2 slaapkamers en de badkamer, die voorzien is van alle comfort.
Tot slot beschikt u ook over private parkeerruimte die gelegen is naast de woning!
Aankoop onder 6%-BTW mogelijk, indien u voldoet aan de voorwaarden!
Nieuw voor investeerders : het 6% BTW-tarief geldt nu ook voor aankopen die gedurende 15 jaar verhuurd worden (onder de toepasselijke wettelijke voorwaarden). Dat verlaagt de aankoopkost en kan uw netto-rendement aanzienlijk verbeteren.
Contacteer Kevin voor meer info en/of een bezoek: 0476 66 55 50 !
(Sted. Inl. in aanvraag, foto's zijn referentiebeelden, maten en opp. zijn geraamd)
Financieel
Verkoop onder btw-stelsel
Ja
Waarde constructie
251.000 €
Waarde grond
85.000 €
Gebouw
Type pand
Huis
Subtype
Huis
Bewoonbare oppervlakte
105,16 m²
Terrein
Perceeloppervlakte
170 m²
Meest recente bestemming terrein
Woongebied
Tuin
Ja
Ligging
Omgeving / buurt
Rustig; Landelijk
Openbaar vervoer nabij
Ja
Afstand tot openbaar vervoer
400 m
Indeling
Aantal slaapkamers
2
Oppervlakte slaapkamers
15 m²; 11 m²
Aantal badkamers
1
Comfort
Videofoon
Ja
Lift
Nee
Zwembad
Nee
Energie
E-peil
30
Zonnepanelen
Ja
Dubbele beglazing
Ja
Ruimtelijke ordening
Bestemming gebouw
Privé - woning
G(ebouw)-score
A (geen overstroming gemodelleerd)
P(erceel)-score
A (geen overstroming gemodelleerd)
Locatie
Maalbroekstraat 5, 9520 Sint-Lievens-Houtem336.000 EUR
Locatie
Maalbroekstraat 5
9520 Sint-Lievens-Houtem














