Huis te koop in Ronse met 4 slaapkamers
Omschrijving
Nieuwbouw woning met 4 slaapkamers
Welkom bij dit nieuwbouw project “HOEVE PESSEMIER”
In het hart van de stad Ronse op de oude site van een textielfabriek inclusief de hoeve en het woonerf rijst dit nieuwbouwproject uit de grond.
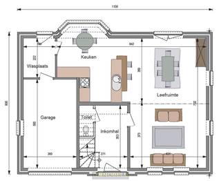
In een eerste fase hebben we de oplevering van 12 woningen op de site, waarvan er reeds 9 verkocht zijn. Bekijk alvast de plannen per woning met 2, 3 of 4 slaapkamers. Is er een zolder dan kan deze ook worden ingericht als bijkomende kamer.
De woningen worden afgewerkt met kwaliteitsvolle, duurzame materialen en voldoen aan alle comfort en de hoogste energie normen. In een volgende fase wordt de hoeve met 8 woningen opgeleverd.
Volgende entiteiten zijn beschikbaar:
- 1 gezinswoning met 2 slaapkamers en private tuin met terras;
- 1 gezinswoning met 3 slaapkamers en private tuin met terras;
- 1 gezinswoning met 4 slaapkamers en private tuin met terras;
Vooraan zijn autostaanplaatsen voorzien die apart kunnen aangekocht worden.
Alle vermelde prijzen zijn steeds exclusief BTW en aankoopkosten.
Financieel
Gebouw
Terrein
Indeling
Energie
Ruimtelijke ordening
Locatie
Oswald Ponettestraat 26, 9600 Ronse383.700 EUR
Locatie
Oswald Ponettestraat 26
9600 Ronse














