Scoop: Huis te koop in Zottegem met 3 slaapkamers
€ 362.603
Is dit haalbaar voor jou?Omschrijving
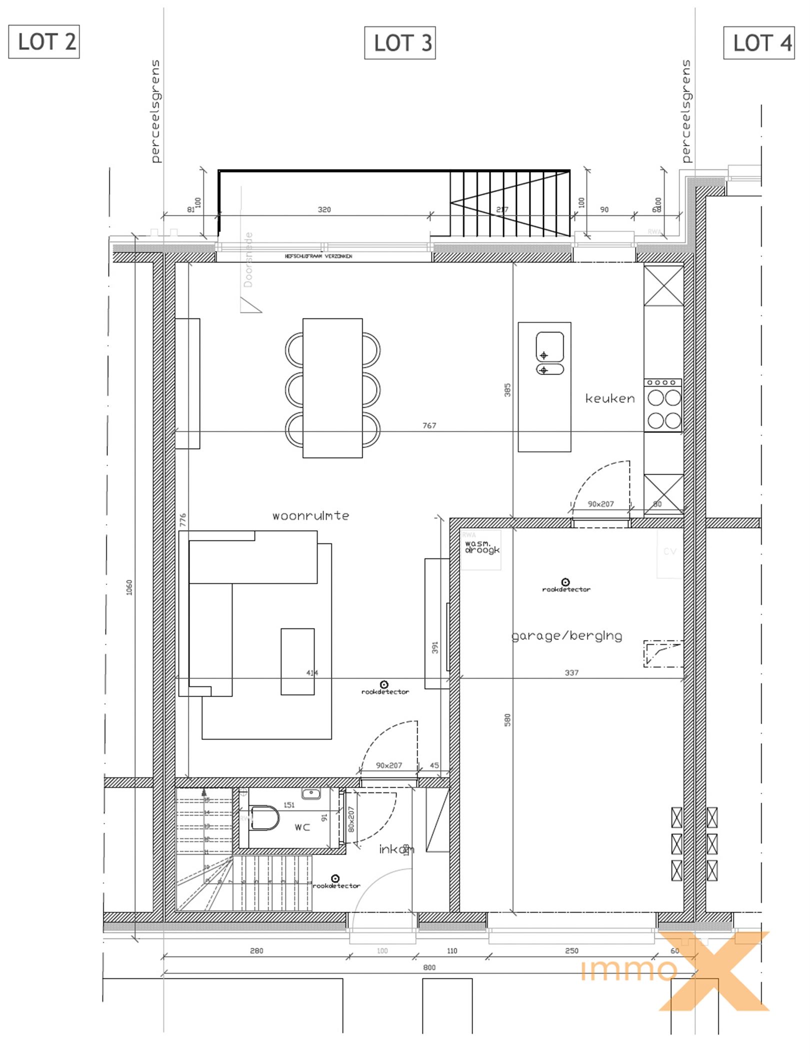
RUIME NIEUWBOUW MET GARAGE EN GROTE TUIN
*** WATER-EN WINDDICHT AANGEBODEN*** KWALITATIEF NIEUWBOUWPROJECT VAN 4 RUIME LICHTRIJKE WONINGEN MET GROTE TUIN EN GARAGE TE GROTENBERGE. Op boogscheut van centrum Zottegem: winkels - scholen - openbaar vervoer (trein en bus) in nabijheid!! Woning bestaande uit: Inkomhal/traphal, gastentoilet, garage, ruime woonkamer/salon met schuifraam naar tuin, keukenruimte, nachthal, afzonderlijk toilet, 3 ruime slaapkamers, badkamer, grote zolder. U KAN DE WONING ZELF VOLLEDIG AFWERKEN NAAR EIGEN KEUZE EN OP EIGEN TEMPO, volgens bepalingen bouwvergunning en geldende EPB richtlijnen. GROTE TUIN UITKIJKEND OP ACHTERLIGGEND NATUURGEBIED!! Op zoek naar een duurzame kwaliteitswoning? Neem dan zeker contact op voor een persoonlijke uiteenzetting. WATER-EN WINDDICHT AFGEWERKT. Vermelde prijs is excl. aankoop/aktekosten, BTW/registratiekosten, aansluitkosten nuts, enz.Voor meer info: Tel: 0473 71 71 70 of mail info@immo-x.be.
Financieel
Kadastrale info
0125/00R002
Gebouw
Type pand
Huis
Subtype
Huis
Bewoonbare oppervlakte
157 m²
Terrein
Perceeloppervlakte
639 m²
Indeling
Aantal slaapkamers
3
Aantal badkamers
1
Type keuken
Gedeeltelijk geïnstalleerd
Energie
E-peil
20
Type beglazing
Dubbel glas
Raamprofielen
PVC
Ruimtelijke ordening
Kadastraal plan
Ja
Locatie
Grotenbergestraat 156 C, 9620 ZottegemIs dit haalbaar voor jou?
Minimale eigen inbreng
-EUR
Maandlast
-EUR/maand
Liever een voorstel op maat?
Vertel meer over je project en je persoonlijke situatie en KBC berekent je persoonlijke rentevoet. Je ontvangt onmiddellijk feedback of je lening haalbaar is en je kunt je aanvraag volledig digitaal afronden. Zelfs als je geen KBC-klant bent.















