Appartement te koop in Zottegem met 2 slaapkamers
€ 335.000
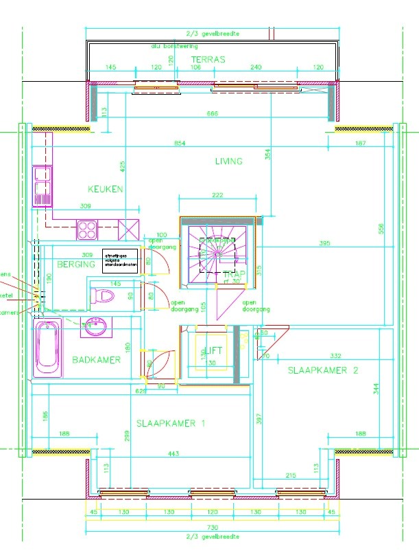
Is dit haalbaar voor jou?Omschrijving
122m² Penthouse in het CENTRUM met LIFT
Zeer ruime leefruimte, met open keuken (alle toestellen). Zuidgericht balkon. 2 GROTE slaapkamers met dressinghoek, badkamer met ligbad, gastentoilet en proviandberging met stapelzolder. GARAGE met sectionaalpoort. BJ 2006. Centrale verwarming is op aardgas. Waterverzachter aanwezig. Kleine residentie van 4 entiteiten. Wandelafstand station, winkelcentrum, openbaar vervoer, eethuisjes, ... = TOPLIGGING !
Financieel
Onroerende voorheffing
1.006 €
Kadastrale info
41081 ZOTTEGEM 1 AFD (Zuidstraat 1 )
Gebouw
Type pand
Appartement
Subtype
Penthouse
Bewoonbare oppervlakte
122 m²
Terrein
Meest recente bestemming terrein
Woongebied
Oriëntatie tuin
Zuid
Ligging
Openbaar vervoer nabij
Ja
Autosnelweg nabij
Ja
School nabij
Ja
Indeling
Aantal slaapkamers
2
Aantal badkamers
1
Keuken
Ja
Comfort
Lift
Ja
Aansluiting elektriciteit
Ja
Aansluiting gas
Ja
Energie
EPC-score (kWh/(m² jaar))
157
EPC-label
B
Unieke code EPC
20211207-0002505228-RES-1
Ruimtelijke ordening
Dagvaarding
Nee
Dagvaarding
Geen rechterlijke herstelmaatregel of bestuurlijke maatregel opgelegd
Bouwvergunning
Ja
Media & downloads
Video
https://youtu.be/U4nxydjrs3I
Virtueel bezoek
https://360.zibber.eu/share/collection/7115Z?logo=0&info=0&fs=1&vr=1&sd=1&initload=0&thumbs=1
Locatie
Zuidstraat 1, 9620 ZottegemIs dit haalbaar voor jou?
Minimale eigen inbreng
-EUR
Maandlast
-EUR/maand
Liever een voorstel op maat?
Vertel meer over je project en je persoonlijke situatie en KBC berekent je persoonlijke rentevoet. Je ontvangt onmiddellijk feedback of je lening haalbaar is en je kunt je aanvraag volledig digitaal afronden. Zelfs als je geen KBC-klant bent.














