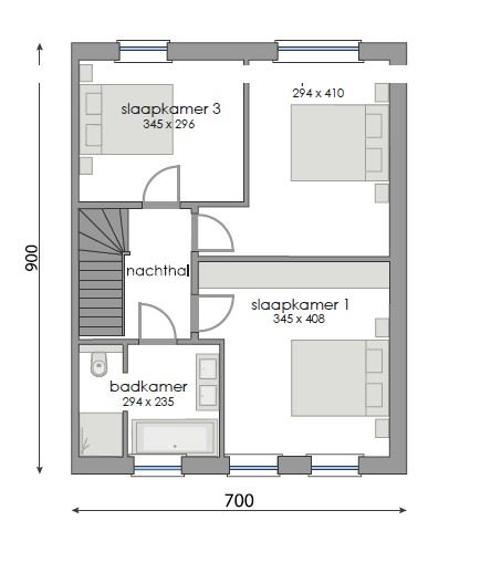
Huis te koop in Merelbeke met 3 slaapkamers
€ 416.246
Is dit haalbaar voor jou?Omschrijving
NEDERENAME - Potaardeberg 60
TE KOOP in MERELBEKE Potaardeberg 60
Mooie verkaveling voor het bouwen een half - open bebouwing
lot 3 Opp. : +/- 578 m² Prijs grond : 203.831 €
FORMULE WATER- EN WINDDICHT:
- Ruwbouwwerken
- Timmerwerken
- PVC ramen met beglazing kw 1.0
- Dak- & zinkwerken
_________________
= € 212.415 excl. btw
OPTIE AFWERKING:
- Elektriciteit en ventilatie
- Chape -en vloerisolatie
- Pleisterwerken
- Sanitaire werken ( HW toestellen = € 4.000 excl. btw )
- Warmtepomp lucht/water ( Viessmann )
- Bevloering ( HW vloer : 35€/m² HW plinten : 12.50€/lm HW wandtegels : 25€/m² )
- Keukeninstallatie ( HW = € 8.000 excl. btw)
- Binnen schrijnwerk
- Voegwerken
- Blowerdoortest
- Zonnepanelen 8st. ( 435 Wp )
_________________
= € 95.433 excl.btw
WIJ BOUWEN OOK A LA CARTE
Opties zijn mogelijk tot net voor " Normale Bewoonbaarheid" (volgens aannemingsovereenkomst)
Informeer naar onze interessante HUISRUIL-FORMULE
zie ook : WWW.SPEYBROECK.BE
Bel 0473 300 700 of GRATIS 0800 15 700
Mooie verkaveling voor het bouwen een half - open bebouwing
lot 3 Opp. : +/- 578 m² Prijs grond : 203.831 €
FORMULE WATER- EN WINDDICHT:
- Ruwbouwwerken
- Timmerwerken
- PVC ramen met beglazing kw 1.0
- Dak- & zinkwerken
_________________
= € 212.415 excl. btw
OPTIE AFWERKING:
- Elektriciteit en ventilatie
- Chape -en vloerisolatie
- Pleisterwerken
- Sanitaire werken ( HW toestellen = € 4.000 excl. btw )
- Warmtepomp lucht/water ( Viessmann )
- Bevloering ( HW vloer : 35€/m² HW plinten : 12.50€/lm HW wandtegels : 25€/m² )
- Keukeninstallatie ( HW = € 8.000 excl. btw)
- Binnen schrijnwerk
- Voegwerken
- Blowerdoortest
- Zonnepanelen 8st. ( 435 Wp )
_________________
= € 95.433 excl.btw
WIJ BOUWEN OOK A LA CARTE
Opties zijn mogelijk tot net voor " Normale Bewoonbaarheid" (volgens aannemingsovereenkomst)
Informeer naar onze interessante HUISRUIL-FORMULE
zie ook : WWW.SPEYBROECK.BE
Bel 0473 300 700 of GRATIS 0800 15 700
Financieel
Verkoop onder btw-stelsel
Ja
Waarde constructie
212.415 €
Waarde grond
203.831 €
Gebouw
Type pand
Huis
Subtype
Huis
Nieuw gebouw
Ja
Terrein
Perceeloppervlakte
578 m²
Indeling
Aantal slaapkamers
3
Aantal badkamers
1
Type keuken
Afgewerkte keuken
Comfort
Lift
Nee
Energie
E-peil
15
Zonnepanelen
Ja
Type beglazing
Dubbel glas
Locatie
Potaardeberg 60, 9820 Merelbeke416.246 EUR
Locatie
Potaardeberg 60
9820 Merelbeke














