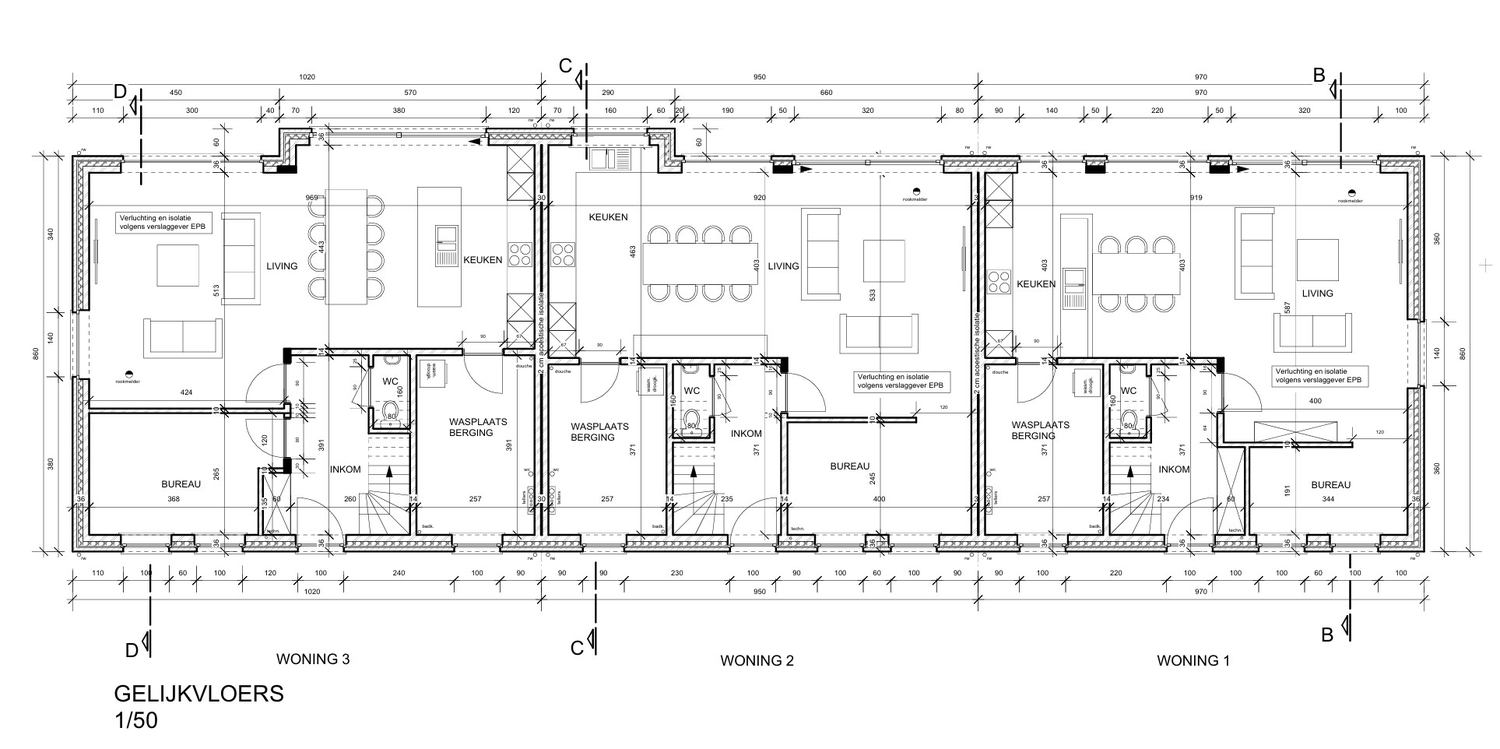
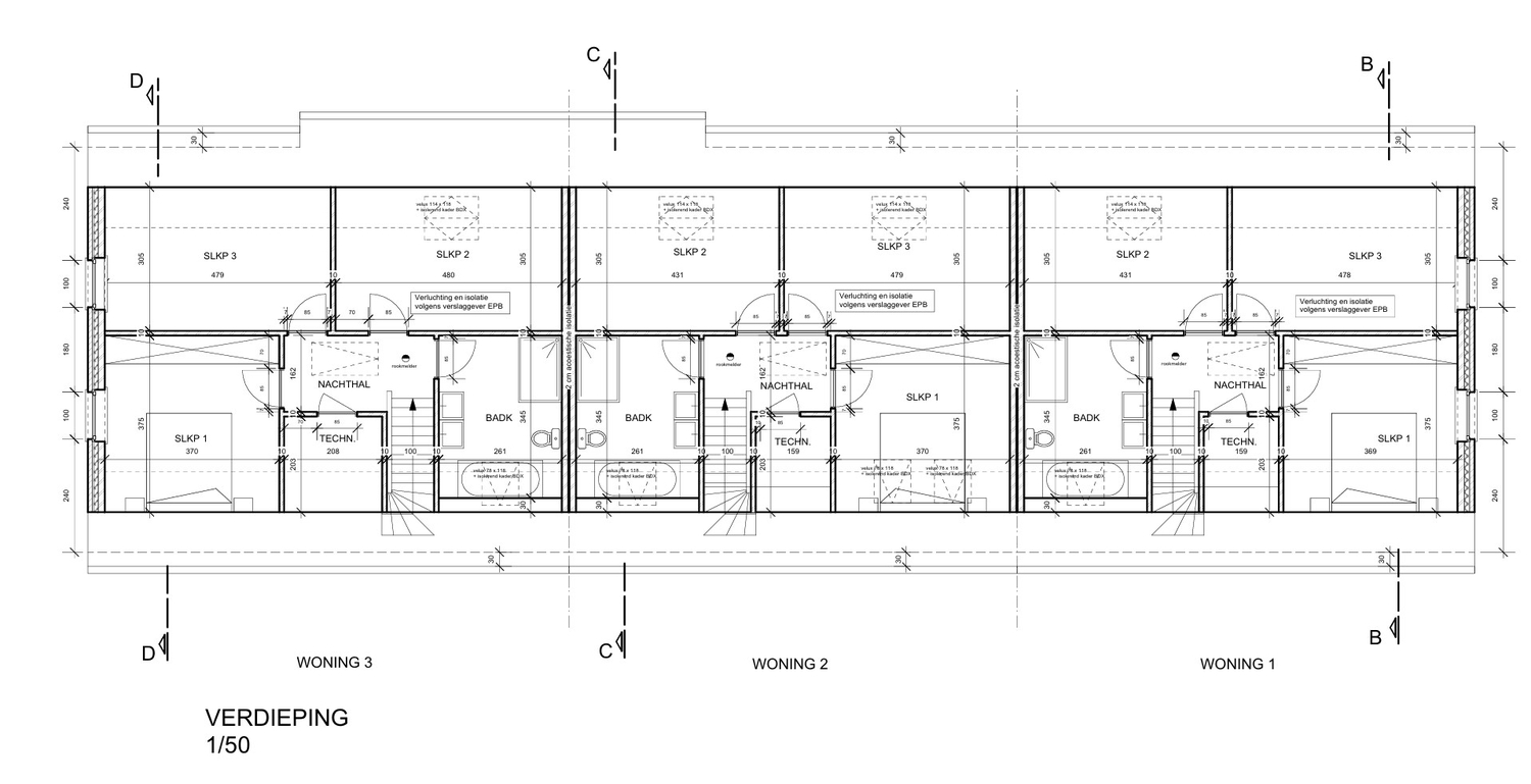
Huis te koop in Nazareth-De Pinte met 3 slaapkamers
€ 928.581
Is dit haalbaar voor jou?Omschrijving
TE KOOP in DE PINTE
TE KOOP in DE PINTE Bosstraat 1
Mooi en centraal gelegen project voor het bouwen van een 3 woningen (2 half-open bebouwing en een gesloten).
Nieuwe maatregel vanaf 1 juli 2025 bouwen aan 6% btw aan de volgende voorwaarden: de levering van een woning na afbraak en heropbouw door een leverancier die een rechtspersoon is of een natuurlijk persoon die de heropgerichte woning zal verkopen:
hetzij aan een natuurlijk persoon die de nieuwe woning zelf zal bewonen: in dat geval gelden sociale criteria inzake oppervlakte (max bewoonbare oppervlakte 175 m2), eigen woning, enige woning en domicilie,
hetzij aan een natuurlijk persoon of een rechtspersoon die de nieuwe woning langdurend (minstens 15 jaar) sociaal zal verhuren (niet onderworpen aan een voorwaarde inzake bewoonbare oppervlakte),
hetzij aan een natuurlijk persoon of rechtspersoon die de nieuwe woning langdurend (minstens 15 jaar) privé zal verhuren aan een natuurlijk persoon die er zonder uitstel zijn domicilie zal hebben en waarbij de woning een bewoonbare oppervlakte heeft van niet meer dan 175 m2.
Prijs grond : € 300.000
FORMULE WATER- EN WINDDICHT:
- Afbraak
- Ruwbouwwerken - kaleien
- Timmerwerken
- Aluminium ramen met beglazing kw 1.0
- Dak- & zinkwerken
_________________
= € 628.581 excl. btw
OPTIE AFWERKING:
- Elektriciteit en ventilatie
- Chape -en vloerisolatie
- Pleisterwerken
- Sanitaire werken (HW toestellen = € 6.000 excl. btw)
- Warmtepomp lucht/water ( Viessmann)
- Bevloering (HW vloer : 35€/m² HW plinten : 12.50€/lm HW wandtegels : 25€/m²)
- Keukeninstallatie (HW = € 8.000 excl. btw)
- Binnenschrijnwerk
- Voegwerken
- Blowerdoortest
- Zonnepanelen 8st. (435 Wp)
_________________
= € 377.500 excl.btw
WIJ BOUWEN OOK A LA CARTE
Opties zijn mogelijk tot net voor " Normale Bewoonbaarheid" (volgens aannemingsovereenkomst)
Informeer naar onze interessante HUISRUIL-FORMULE
zie ook : WWW.SPEYBROECK.BE
Bel 0473 300 700 of GRATIS 0800 15 700
Mooi en centraal gelegen project voor het bouwen van een 3 woningen (2 half-open bebouwing en een gesloten).
Nieuwe maatregel vanaf 1 juli 2025 bouwen aan 6% btw aan de volgende voorwaarden: de levering van een woning na afbraak en heropbouw door een leverancier die een rechtspersoon is of een natuurlijk persoon die de heropgerichte woning zal verkopen:
hetzij aan een natuurlijk persoon die de nieuwe woning zelf zal bewonen: in dat geval gelden sociale criteria inzake oppervlakte (max bewoonbare oppervlakte 175 m2), eigen woning, enige woning en domicilie,
hetzij aan een natuurlijk persoon of een rechtspersoon die de nieuwe woning langdurend (minstens 15 jaar) sociaal zal verhuren (niet onderworpen aan een voorwaarde inzake bewoonbare oppervlakte),
hetzij aan een natuurlijk persoon of rechtspersoon die de nieuwe woning langdurend (minstens 15 jaar) privé zal verhuren aan een natuurlijk persoon die er zonder uitstel zijn domicilie zal hebben en waarbij de woning een bewoonbare oppervlakte heeft van niet meer dan 175 m2.
Prijs grond : € 300.000
FORMULE WATER- EN WINDDICHT:
- Afbraak
- Ruwbouwwerken - kaleien
- Timmerwerken
- Aluminium ramen met beglazing kw 1.0
- Dak- & zinkwerken
_________________
= € 628.581 excl. btw
OPTIE AFWERKING:
- Elektriciteit en ventilatie
- Chape -en vloerisolatie
- Pleisterwerken
- Sanitaire werken (HW toestellen = € 6.000 excl. btw)
- Warmtepomp lucht/water ( Viessmann)
- Bevloering (HW vloer : 35€/m² HW plinten : 12.50€/lm HW wandtegels : 25€/m²)
- Keukeninstallatie (HW = € 8.000 excl. btw)
- Binnenschrijnwerk
- Voegwerken
- Blowerdoortest
- Zonnepanelen 8st. (435 Wp)
_________________
= € 377.500 excl.btw
WIJ BOUWEN OOK A LA CARTE
Opties zijn mogelijk tot net voor " Normale Bewoonbaarheid" (volgens aannemingsovereenkomst)
Informeer naar onze interessante HUISRUIL-FORMULE
zie ook : WWW.SPEYBROECK.BE
Bel 0473 300 700 of GRATIS 0800 15 700
Financieel
Verkoop onder btw-stelsel
Ja
Waarde grond
300.000 €
Gebouw
Type pand
Huis
Subtype
Huis
Nieuw gebouw
Ja
Terrein
Perceeloppervlakte
3.125 m²
Meest recente bestemming terrein
Woongebied
Indeling
Aantal slaapkamers
3
Aantal badkamers
1
Type keuken
Afgewerkte keuken
Comfort
Lift
Nee
Energie
E-peil
15
Zonnepanelen
Ja
Type beglazing
Dubbel glas
Locatie
Bosstraat 143, 9840 Nazareth-De Pinte928.581 EUR
Locatie
Bosstraat 143
9840 Nazareth-De Pinte















