Grond te koop in De Pinte
€ 425.000
Is dit haalbaar voor jou?Omschrijving
Zuidgericht perceel bouwgrond voor alleenstaande woning in De Pinte
- Zuidgericht perceel
- Voor vrijstaande woning
- Dichtbij Gent
- Goede mobiliteit
OMGEVING
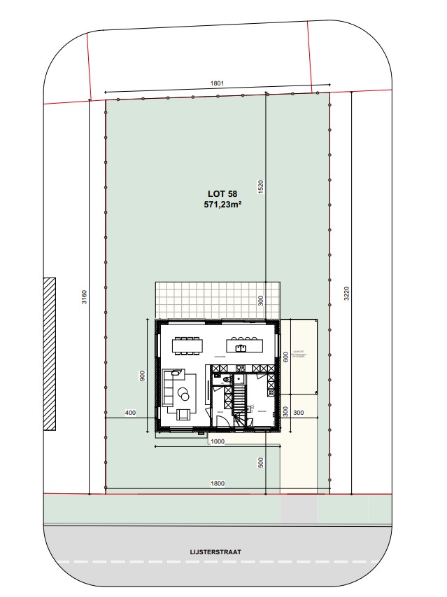
Dit villalot (lot 58) ligt in een rustige, groene woonwijk in De Pinte, een gemeente die bekendstaat om haar aangename leefomgeving en gezinsvriendelijke karakter. Het centrum met winkels, scholen en horecazaken bevindt zich op korte afstand, waardoor dagelijkse voorzieningen gemakkelijk bereikbaar zijn. Dankzij de nabijheid van het treinstation en de E17 is er een uitstekende verbinding met Gent, dat op slechts een tiental minuten rijden ligt. De omgeving combineert de rust van het wonen in het groen met de vlotte toegang tot stedelijke voorzieningen. Dit maakt de locatie bijzonder aantrekkelijk voor wie comfortabel en rustig wil wonen dicht bij de stad.
Interesse in dit perceelbouwgrond te De Pinte? Contacteer ons via info@potrell.be of 09 394 67 95.
BOUWEN OP MAAT | JOUW WONING, JOUW STIJL
Bouw met Potrell op dit stuk grond jouw droomhuis op maat! Als meester in het bouwen realiseert Potrell jouw totaalproject. Ons vakkundig team begeleidt jou doorheen het volledige bouwtraject. We zijn een betrouwbare partner en realiseren hoogstaande nieuwbouwprojecten. Jij kiest, onze bouwspecialisten voeren uit. Vaarwel zorgen en stress.
Gebouw
Type pand
Grond
Subtype
Bouwgrond
Bewoonbare oppervlakte
206 m²
Terrein
Perceeloppervlakte
571 m²
Indeling
Aantal slaapkamers
0
Aantal badkamers
0
Aantal toiletten
0
Comfort
Lift
Nee
Energie
E-peil
0
Keuringsattest elektriciteit
Ja, niet conform
Ruimtelijke ordening
Verkavelingsvergunning
Ja
Locatie
Lijsterstraat 23, 9840 De Pinte425.000 EUR
Locatie
Lijsterstraat 23
9840 De Pinte
Is dit haalbaar voor jou?
Minimale eigen inbreng
-EUR
Maandlast
-EUR/maand
Liever een voorstel op maat?
Vertel meer over je project en je persoonlijke situatie en KBC berekent je persoonlijke rentevoet. Je ontvangt onmiddellijk feedback of je lening haalbaar is en je kunt je aanvraag volledig digitaal afronden. Zelfs als je geen KBC-klant bent.










