Huis te koop in Ertvelde met 3 slaapkamers
€ 413.836
Is dit haalbaar voor jou?Omschrijving
Kroonstraat 51 - 51A
Landelijk wonen met moderne allure in Ertvelde! Aan de rand van het Meetjesland biedt dit nieuwbouwproject twee halfopen gezinswoningen. Eigentijdse architectuur, een praktische indeling en energiezuinige technieken maken dit de ideale thuis in een landelijke omgeving.
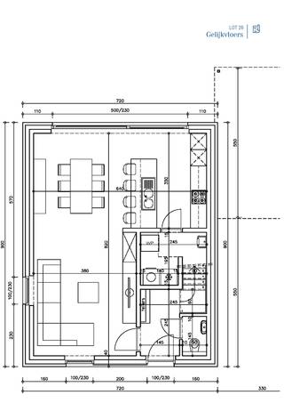
Beide woningen omvatten op het gelijkvloers een inkomhal, een lichtrijke leefruimte met open keuken en een apart toilet.
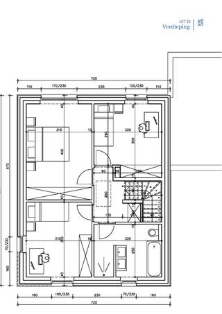
Lot 1 heeft een inpandige garage met wasplaats en berging, die leidt naar de open keuken en ruime leefruimte; boven zijn er 3 slaapkamers, een badkamer met douche en bad, een apart toilet en een linnenkamer.
Lot 2 biedt een carport, met boven 3 slaapkamers, 2 badkamers (1 met enkel douche, 1 met bad en douche), en een apart toilet.
Beide woningen hebben een zolder, bereikbaar via een vaste trap, die kan dienen als polyvalente ruimte of opslag.
Omgeven door groen en vlot bereikbaar naar Gent en Antwerpen, combineer je hier rust met comfort.
Neem vandaag nog contact op voor meer info of een bezoek ter plaatse!
Beide woningen omvatten op het gelijkvloers een inkomhal, een lichtrijke leefruimte met open keuken en een apart toilet.
Lot 1 heeft een inpandige garage met wasplaats en berging, die leidt naar de open keuken en ruime leefruimte; boven zijn er 3 slaapkamers, een badkamer met douche en bad, een apart toilet en een linnenkamer.
Lot 2 biedt een carport, met boven 3 slaapkamers, 2 badkamers (1 met enkel douche, 1 met bad en douche), en een apart toilet.
Beide woningen hebben een zolder, bereikbaar via een vaste trap, die kan dienen als polyvalente ruimte of opslag.
Omgeven door groen en vlot bereikbaar naar Gent en Antwerpen, combineer je hier rust met comfort.
Neem vandaag nog contact op voor meer info of een bezoek ter plaatse!
Gebouw
Type pand
Huis
Subtype
Huis
Nieuw gebouw
Ja
Indeling
Aantal slaapkamers
3
Dressing
Ja
Aantal badkamers
1
Comfort
Lift
Nee
Aansluiting elektriciteit
Ja
Aansluiting riolering
Ja
Energie
E-peil
0
Zonnepanelen
Ja
Type beglazing
Dubbel glas
Locatie
Kroonstraat 51, 9940 ErtveldeIs dit haalbaar voor jou?
Minimale eigen inbreng
-EUR
Maandlast
-EUR/maand
Liever een voorstel op maat?
Vertel meer over je project en je persoonlijke situatie en KBC berekent je persoonlijke rentevoet. Je ontvangt onmiddellijk feedback of je lening haalbaar is en je kunt je aanvraag volledig digitaal afronden. Zelfs als je geen KBC-klant bent.













