Huis te koop in Evergem met 3 slaapkamers
€ 498.451
Is dit haalbaar voor jou?Omschrijving
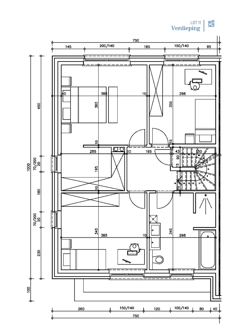
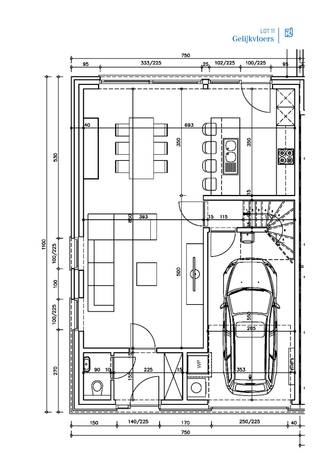
Evergem, Elslo - Venhoute - Fase 1: Lot 11
Een moderne halfopen nieuwbouwwoning met inpandige garage op een zuidwest-georiënteerd perceel in een rustige verkaveling. De woning beschikt over 3 slaapkamers waarvan 1 met dressing. Een vaste trap naar zolder is voorzien waardoor optioneel een 4e slaapkamer mogelijk is. Deze BEN-woning is voorzien van alle energiezuinige technieken zoals warmtepomp, vloerverwarming gelijkvloers en verdieping, ventilatie D met warmterecuperatie, regenwaterput 10 000L, zonnepanelen,... Meer info? Bel Ewout op 0497 588 888 of mail naar contact@huysmanbouw.be
Financieel
Verkoop onder btw-stelsel
Ja
Waarde constructie
29.275 €
Waarde grond
69.775 €
Gebouw
Type pand
Huis
Subtype
Huis
Nieuw gebouw
Ja
Terrein
Perceeloppervlakte
259 m²
Indeling
Aantal slaapkamers
3
Aantal badkamers
0
Aantal toiletten
0
Comfort
Lift
Nee
Energie
E-peil
0
Keuringsattest elektriciteit
Ja, niet conform
Ruimtelijke ordening
Verkavelingsvergunning
Ja
Voorkooprecht
Nee
Beschermd erfgoed
Nee
Locatie
Elslo, 9940 Evergem498.451 EUR
Locatie
Elslo
9940 Evergem















