Huis te koop in Evergem met 3 slaapkamers
€ 425.760
Is dit haalbaar voor jou?Omschrijving
Evergem, Boordekens - Fase 1: Lot 02
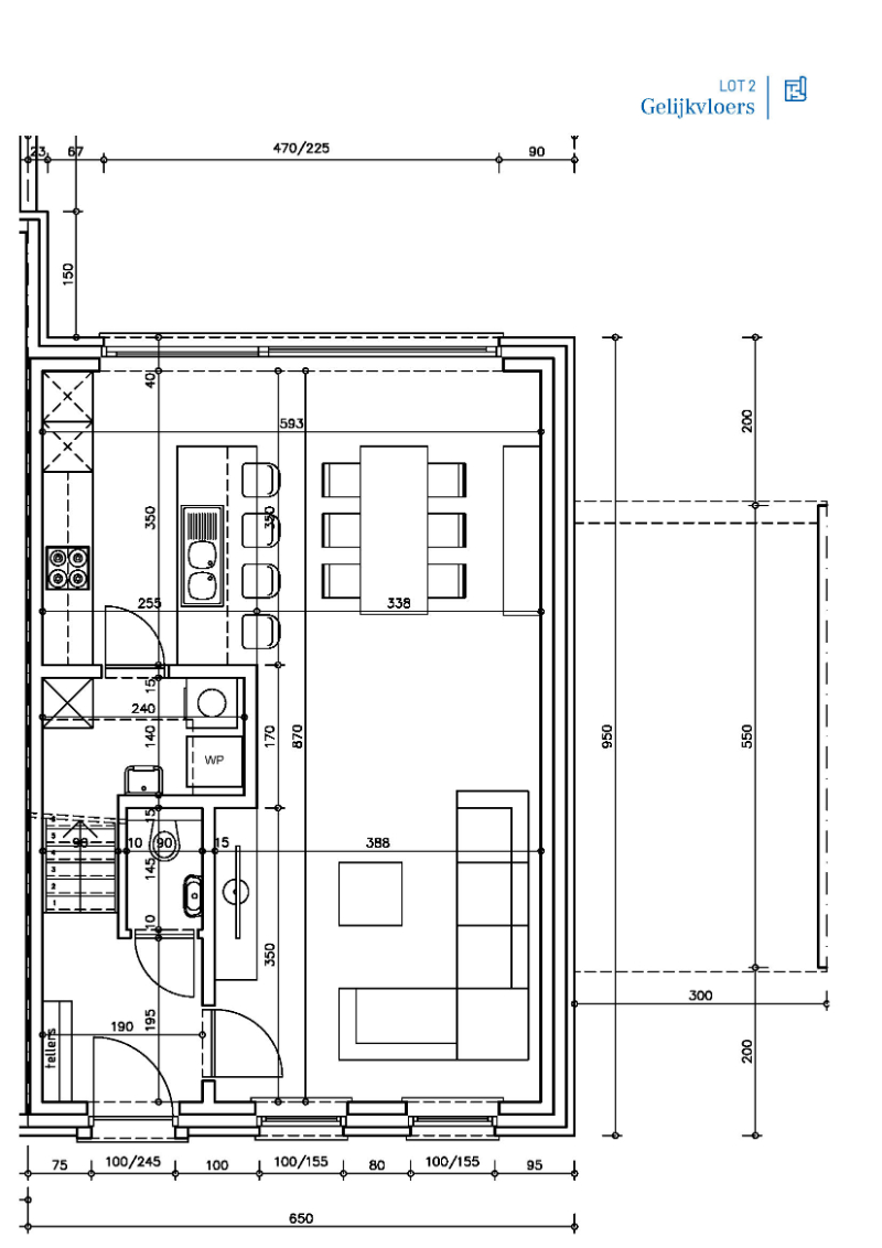
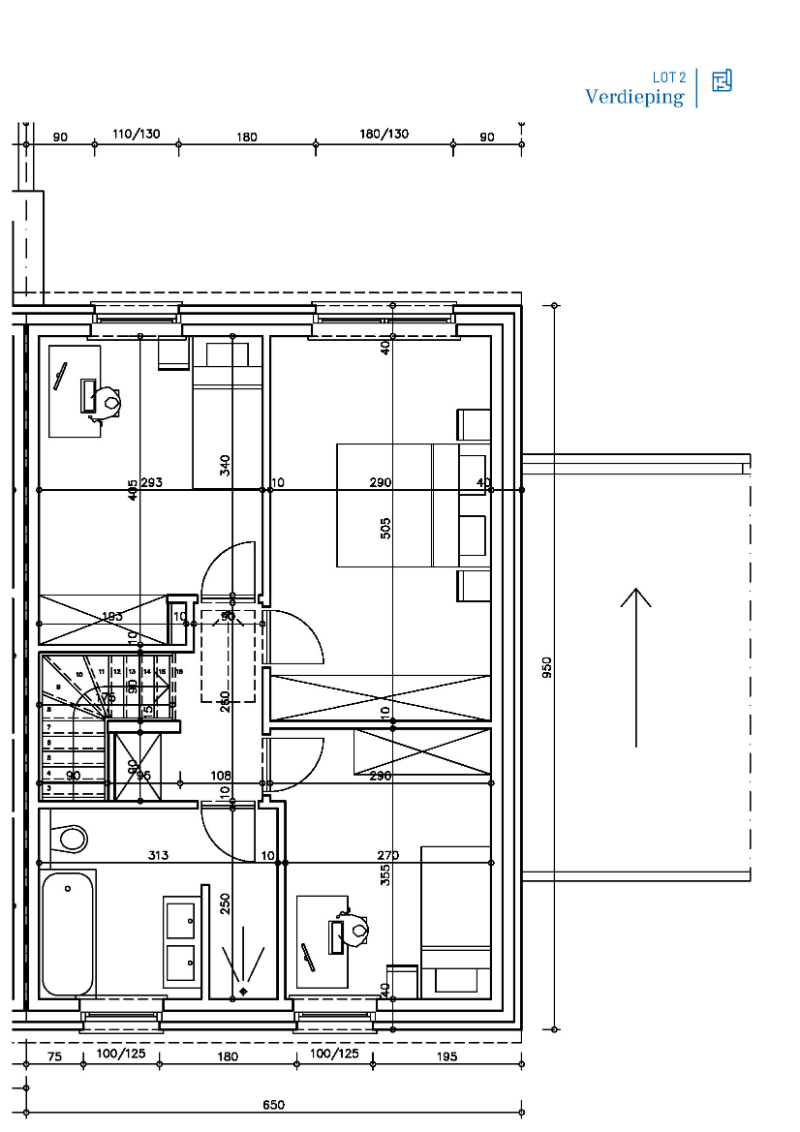
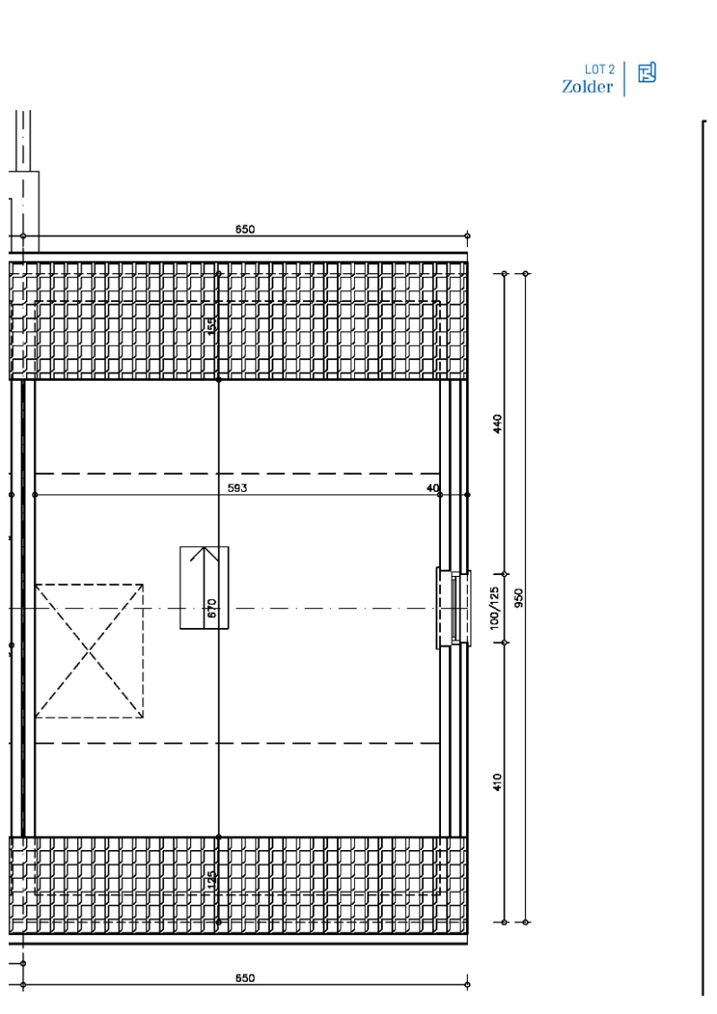
Welkom in de warme omhelzing van een landelijke halfopen nieuwbouwwoning, inclusief carport, gelegen op een zuidoostelijk-georiënteerd perceel in een serene verkaveling. Deze charmante woning biedt niet alleen rust en comfort, maar ook een perfecte samensmelting van een moderne levensstijl en landelijke sfeer. Met 3 slaapkamers is deze woning ideaal voor een gezinsleven terwijl een optionele vaste trap naar de zolder de mogelijkheid biedt voor een 4e slaapkamer. Deze energiezuinige BEN-woning is uitgerust met geavanceerde technologieën, waaronder een warmtepomp, vloerverwarming op het gelijkvloers en de verdieping, ventilatie type D met warmterecuperatie, een regenwaterput van 10.000L, zonnepanelen, en meer. Het zuidoostelijk-georiënteerde perceel laat je genieten van de ochtendzon en creëert een sfeervolle buitenruimte voor ontspanning en gezelligheid. Voor meer informatie en om deze droomwoning te ontdekken, neem contact op met Ewout via 0497 588 888 of stuur een e-mail naar contact@huysmanbouw.be. Laten we samen de weg naar jouw nieuwe thuis verkennen.
Financieel
Verkoop onder btw-stelsel
Ja
Waarde constructie
35.346 €
Waarde grond
103.254 €
Gebouw
Type pand
Huis
Subtype
Huis
Nieuw gebouw
Ja
Terrein
Perceeloppervlakte
274 m²
Meest recente bestemming terrein
Woonuitbreidingsgebied
Oriëntatie tuin
Zuidoost
Indeling
Aantal slaapkamers
3
Aantal badkamers
0
Aantal toiletten
0
Comfort
Lift
Nee
Energie
EPC-label
A
E-peil
0
Keuringsattest elektriciteit
Ja, conform
Ruimtelijke ordening
Verkavelingsvergunning
Ja
Voorkooprecht
Nee
Beschermd erfgoed
Nee
Locatie
Boordekens 16, 9940 EvergemIs dit haalbaar voor jou?
Minimale eigen inbreng
-EUR
Maandlast
-EUR/maand
Liever een voorstel op maat?
Vertel meer over je project en je persoonlijke situatie en KBC berekent je persoonlijke rentevoet. Je ontvangt onmiddellijk feedback of je lening haalbaar is en je kunt je aanvraag volledig digitaal afronden. Zelfs als je geen KBC-klant bent.













