Huis te koop in Evergem met 4 slaapkamers
€ 462.591
Is dit haalbaar voor jou?Omschrijving
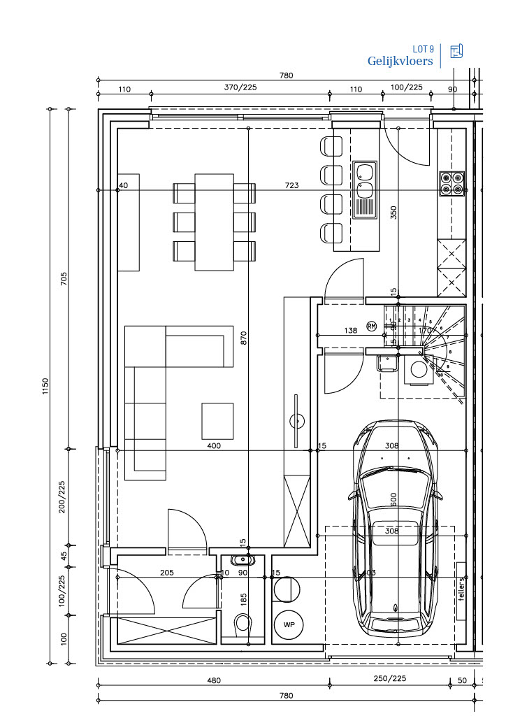
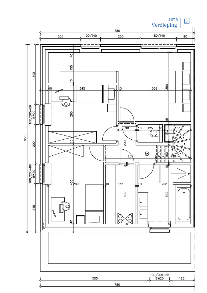
Evergem, Boordekens - Fase 1: Lot 09
Stap binnen in de strakke elegantie van een moderne halfopen nieuwbouwwoning, compleet met inpandige garage, gelegen op een zuid-georiënteerd perceel in een serene verkaveling. Deze eigentijdse woning biedt niet alleen een oase van rust maar ook een harmonieuze mix van modern design en comfort.
Deze energiezuinige BEN-woning is uitgerust met geavanceerde technologieën, waaronder een warmtepomp, vloerverwarming op het gelijkvloers en de verdieping, ventilatie type D met warmterecuperatie, een regenwaterput van 10.000L, zonnepanelen, en meer.
Het zuid-georiënteerde perceel vangt de zonnestralen optimaal op en creëert een lichte en luchtige sfeer in de woning. Interesse in deze woning of bespreekt u graag even de verschillende mogelijkheden? 0497 588 888 of ewout@huysmanbouw.be. Ook voor een afspraak in onze kijkwoning maak ik graag tijd voor u vrij.
Deze energiezuinige BEN-woning is uitgerust met geavanceerde technologieën, waaronder een warmtepomp, vloerverwarming op het gelijkvloers en de verdieping, ventilatie type D met warmterecuperatie, een regenwaterput van 10.000L, zonnepanelen, en meer.
Het zuid-georiënteerde perceel vangt de zonnestralen optimaal op en creëert een lichte en luchtige sfeer in de woning. Interesse in deze woning of bespreekt u graag even de verschillende mogelijkheden? 0497 588 888 of ewout@huysmanbouw.be. Ook voor een afspraak in onze kijkwoning maak ik graag tijd voor u vrij.
Financieel
Verkoop onder btw-stelsel
Ja
Waarde constructie
36.120 €
Waarde grond
98.380 €
Gebouw
Type pand
Huis
Subtype
Huis
Nieuw gebouw
Ja
Terrein
Perceeloppervlakte
280 m²
Meest recente bestemming terrein
Woonuitbreidingsgebied
Oriëntatie tuin
Zuid
Indeling
Aantal slaapkamers
4
Aantal badkamers
0
Type keuken
Afgewerkte keuken
Comfort
Lift
Nee
Aansluiting elektriciteit
Ja
Aansluiting riolering
Ja
Energie
EPC-label
A
E-peil
30
Zonnepanelen
Ja
Ruimtelijke ordening
Verkavelingsvergunning
Ja
Voorkooprecht
Nee
Beschermd erfgoed
Nee
Locatie
Boordekens 16, 9940 EvergemIs dit haalbaar voor jou?
Minimale eigen inbreng
-EUR
Maandlast
-EUR/maand
Liever een voorstel op maat?
Vertel meer over je project en je persoonlijke situatie en KBC berekent je persoonlijke rentevoet. Je ontvangt onmiddellijk feedback of je lening haalbaar is en je kunt je aanvraag volledig digitaal afronden. Zelfs als je geen KBC-klant bent.












