Huis te koop in Evergem met 3 slaapkamers
€ 494.346
Is dit haalbaar voor jou?Omschrijving
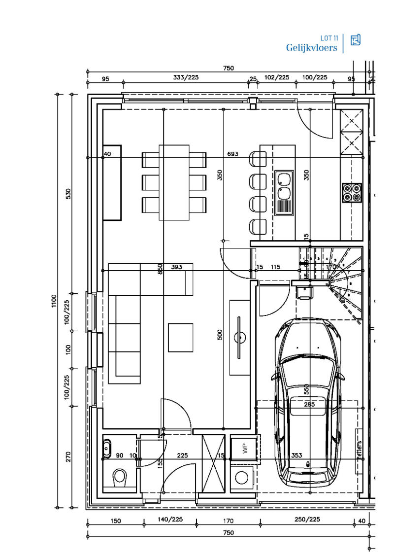
Evergem, Boordekens - Fase 1: Lot 11
Stap binnen in de strakke elegantie van een moderne halfopen nieuwbouwwoning, compleet met inpandige garage, gelegen op een zuid-georiënteerd perceel in een serene verkaveling. Deze eigentijdse woning biedt niet alleen een oase van rust maar ook een harmonieuze mix van modern design en comfort. Met 3 slaapkamers biedt deze woning voldoende ruimte voor een gezinsleven terwijl een optionele vaste trap naar de zolder de mogelijkheid biedt voor een 4e slaapkamer. Deze energiezuinige BEN-woning is uitgerust met geavanceerde technologieën, waaronder een warmtepomp, vloerverwarming op het gelijkvloers en de verdieping, ventilatie type D met warmterecuperatie, een regenwaterput van 10.000L, zonnepanelen, en meer. Het zuid-georiënteerde perceel vangt de zonnestralen optimaal op en creëert een lichte en luchtige sfeer in de woning. Voor meer informatie en om deze moderne woning te ontdekken, bel Ewout op 0497 588 888 of stuur een e-mail naar contact@huysmanbouw.be. Laat ons samen de deur openen naar jouw nieuwe thuis.
Financieel
Verkoop onder btw-stelsel
Ja
Waarde constructie
39.345 €
Waarde grond
103.905 €
Gebouw
Type pand
Huis
Subtype
Huis
Nieuw gebouw
Ja
Terrein
Perceeloppervlakte
305 m²
Meest recente bestemming terrein
Woonuitbreidingsgebied
Oriëntatie tuin
Zuid
Indeling
Aantal slaapkamers
3
Aantal badkamers
0
Aantal toiletten
0
Comfort
Lift
Nee
Energie
EPC-label
A
E-peil
0
Keuringsattest elektriciteit
Ja, conform
Ruimtelijke ordening
Verkavelingsvergunning
Ja
Voorkooprecht
Nee
Beschermd erfgoed
Nee
Locatie
Boordekens 16, 9940 EvergemIs dit haalbaar voor jou?
Minimale eigen inbreng
-EUR
Maandlast
-EUR/maand
Liever een voorstel op maat?
Vertel meer over je project en je persoonlijke situatie en KBC berekent je persoonlijke rentevoet. Je ontvangt onmiddellijk feedback of je lening haalbaar is en je kunt je aanvraag volledig digitaal afronden. Zelfs als je geen KBC-klant bent.














