Huis te koop in Evergem met 4 slaapkamers
€ 438.725
Is dit haalbaar voor jou?Omschrijving
Evergem, Boordekens - Fase 1: Lot 25
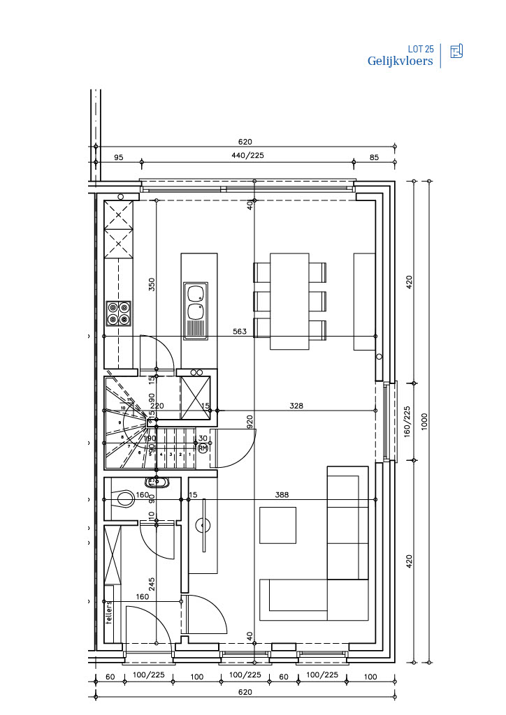
Een moderne halfopen nieuwbouwwoning met op het gelijkvloers een inkom, een ruime living en open keuken, een berging en een gastentoilet. Op de verdieping zijn er 3 slaapkamers, een badkamer met bad en inloopdouche en een wasplaats. De zolder is toegankelijk via een vaste trap en kan gerust ingericht worden als vierde slaapkamer, bureau, hobbyruimte,… . Afwerking naar eigen smaak binnen de vooropgestelde afwerkingsbudgetten. In de prijs zit eveneens een tuinberging en carport inbegrepen. U kan deze woning aankopen aan 6% BTW. Meer info? Contacteer Ewout op 0497 588 888 of via contact@huysmanbouw.be
Financieel
Verkoop onder btw-stelsel
Ja
Waarde constructie
27.219 €
Waarde grond
106.931 €
Gebouw
Type pand
Huis
Subtype
Huis
Nieuw gebouw
Ja
Terrein
Perceeloppervlakte
193 m²
Meest recente bestemming terrein
Woonuitbreidingsgebied
Indeling
Aantal slaapkamers
4
Aantal badkamers
0
Aantal toiletten
0
Comfort
Lift
Nee
Energie
EPC-label
A
E-peil
0
Keuringsattest elektriciteit
Ja, conform
Ruimtelijke ordening
Verkavelingsvergunning
Ja
Voorkooprecht
Nee
Beschermd erfgoed
Nee
Locatie
Gudula Van Wassenhovestraat 2, 9940 EvergemIs dit haalbaar voor jou?
Minimale eigen inbreng
-EUR
Maandlast
-EUR/maand
Liever een voorstel op maat?
Vertel meer over je project en je persoonlijke situatie en KBC berekent je persoonlijke rentevoet. Je ontvangt onmiddellijk feedback of je lening haalbaar is en je kunt je aanvraag volledig digitaal afronden. Zelfs als je geen KBC-klant bent.















