Huis te koop in Anderlecht met 12 slaapkamers
Omschrijving
TE KOOP – Magazijn met woonvergunning in Anderlecht
🏢 TE KOOP – Gebouw met vergunning voor appartementen | Clemenceaulaan, Anderlecht
Bent u investeerder, projectontwikkelaar of promotor op zoek naar een rendabel vastgoedproject in Brussel?
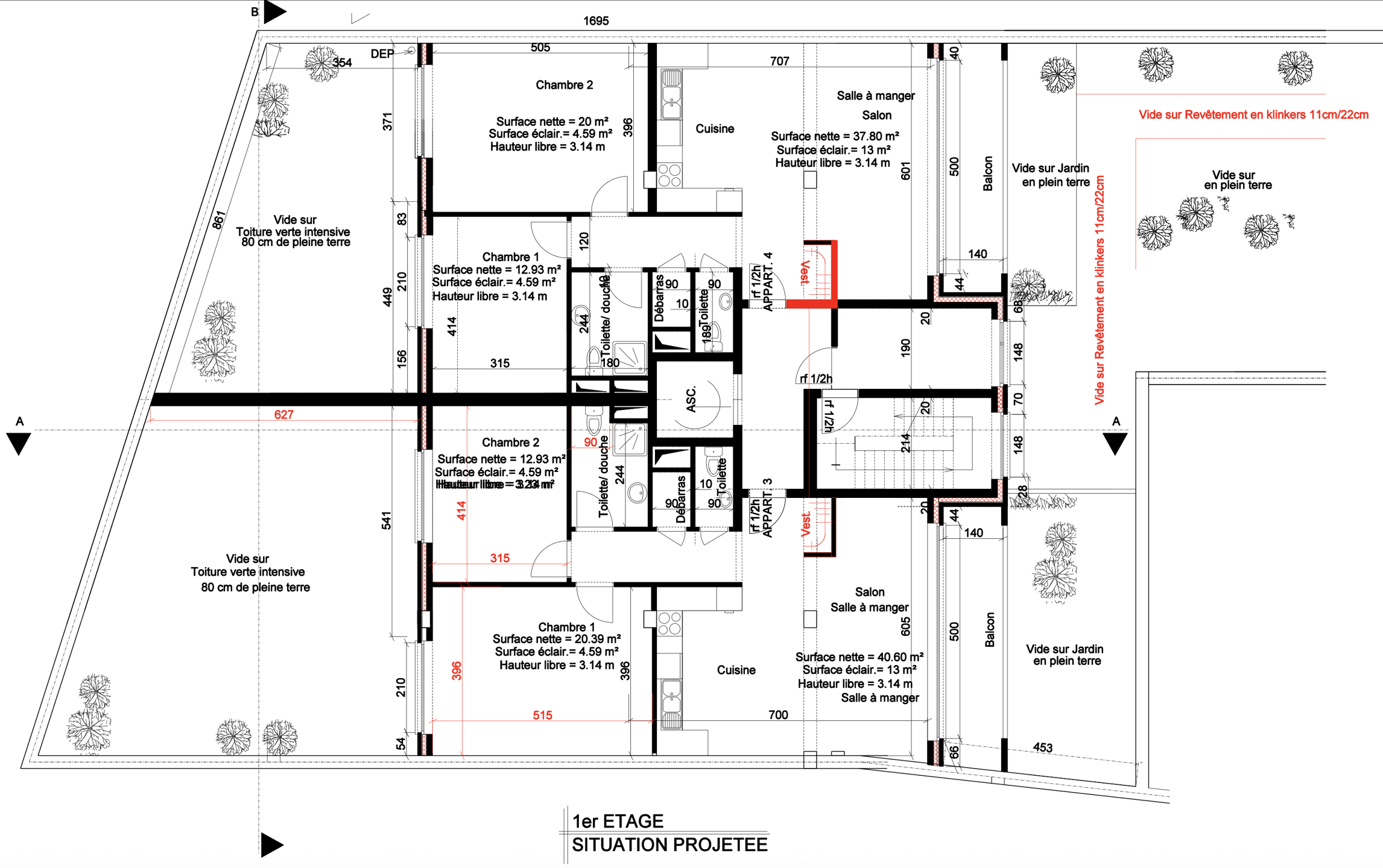
👉 Ontdek dit magazijn van ±1.000 m² in Anderlecht met een reeds goedgekeurde stedenbouwkundige vergunning voor de creatie van 6 moderne appartementen met terrassen.
📍 Strategische ligging
Gelegen in een rustige binnenblok, vlakbij de Clemenceaulaan, het centrum van Brussel, metro en openbaar vervoer, winkels en scholen. Een ideale locatie voor een aantrekkelijk woonproject.
✨ Belangrijkste kenmerken
✔️ Bestaand magazijn van ±1.000 m² (3 verdiepingen van ±330 m²)
✔️ Vergunning verleend voor transformatie naar woonfunctie
✔️ Ontwikkelingspotentieel: ±600 m² bewoonbare oppervlakte
✔️ 6 appartementen met 2 slaapkamers en terrassen
✔️ Toegang via zijpassage – rustige en gegeerde omgeving
📈 Troeven voor investeerders / ontwikkelaars
-
Turnkey-project met reeds verkregen vergunning
-
Woonwijk met hoge huur- en koopvraag
-
Sterk waardeverhogend potentieel na transformatie
-
Zeldzame kans in Anderlecht, een wijk in volle ontwikkeling
📞 Interesse?
Contacteer ons voor de plannen, vergunningdetails en een bezoek :
👉 We Invest Brussel-Europa
Arthur Reynier – 0479 94 92 71
📧 arthur.r@weinvest.be
🔎 Ontdek ook onze andere vastgoedprojecten te koop in Anderlecht en Brussel op 👉 www.weinvest.be
Gebouw
Ligging
Indeling
Comfort
Energie
Ruimtelijke ordening
Locatie
Avenue Clemenceau 13, 1070 Anderlecht799.000 EUR
Locatie
Avenue Clemenceau 13
1070 Anderlecht














