Grond te koop in Vollezele met 3 slaapkamers
Omschrijving
Bouwgrond met plan en vergunning op een terrein van 1107m²
Absolute topper! We treffen dit te bouwen nieuwbouwpand aan in de Rensbergstraat ter hoogte van huisnummer 23 te Vollezele.
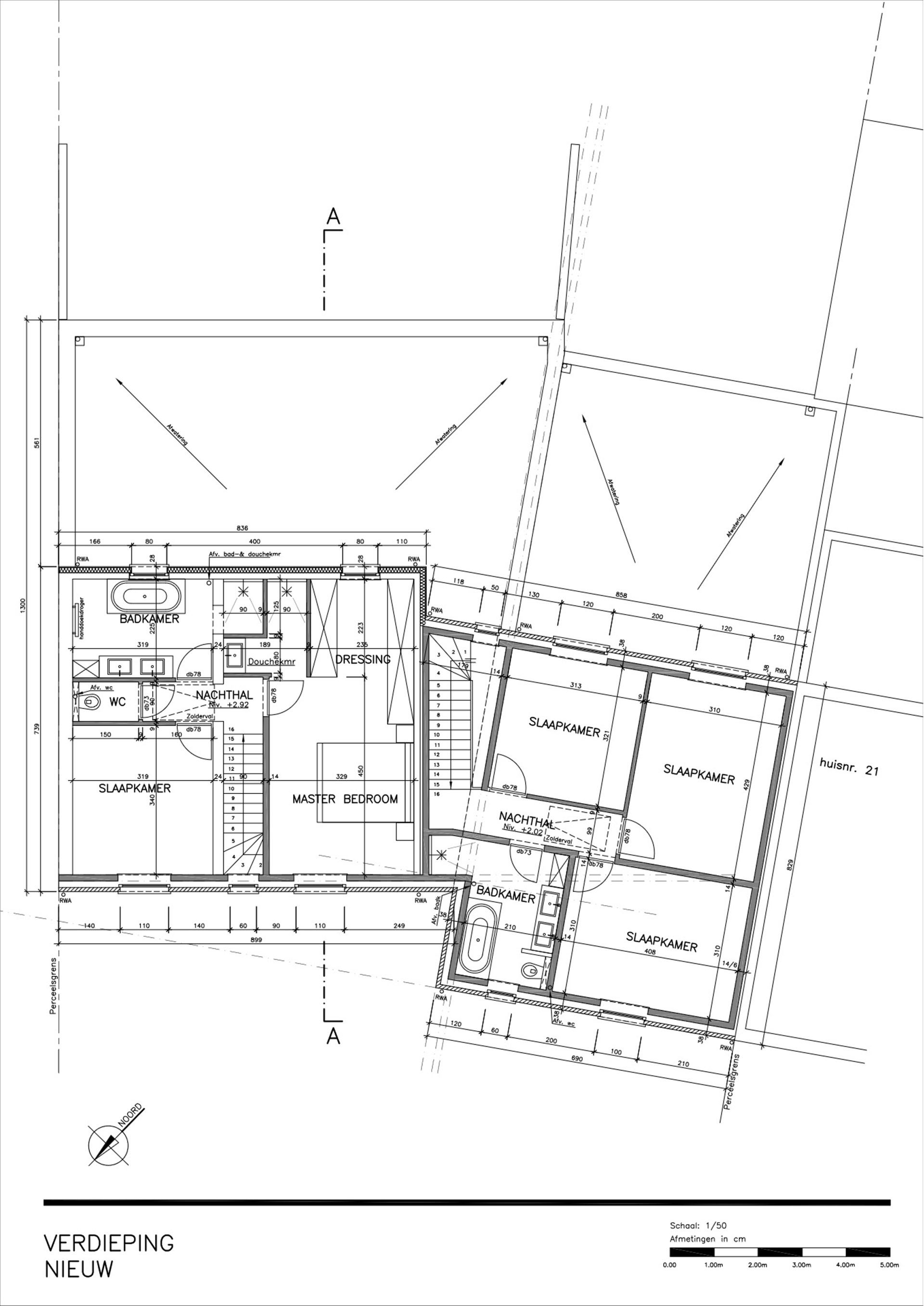
Wij bieden een bouwgrond aan op een perceel van 1107 m² met plan en vergunning! Het betreft de linkse woning op de plannen (zie foto's), met een bewoonbare oppervlakte van ongeveer 180m².
Op de gelijkvloerse verdieping vinden we een ruime inkomhal met aansluitend een toilet. Hier aanpalend bevindt zich een eerste slaapkamer met eigen sanitair. Eveneens aanpalend: een groot bureel. Vervolgens kunnen we de ruime leefruimte met aansluitend de eetplaats en een rijkelijk uitgeruste keuken vinden. Er is een groot terras en een grote tuin. Tot slot is aansluitend aan de keuken nog de wasplaats/berging;
Op de eerste verdieping bevindt zich de nachthal met een toilet, een badkamer met douche en ligbad en nog 2 ruime slaapkamers, waarvan eentje met dressing.
De zolder zal toegankelijk zijn met een zolderluik.
Voor meer informatie of een bezoek, contacteer Kristof van Immo Zone op het nummer 0484/ 84. 84. 86.
Financieel
Gebouw
Terrein
Ligging
Indeling
Comfort
Energie
Ruimtelijke ordening
Locatie
Rensbergstraat 23, 1570 VollezeleIs dit haalbaar voor jou?
Liever een voorstel op maat?
Vertel meer over je project en je persoonlijke situatie en KBC berekent je persoonlijke rentevoet. Je ontvangt onmiddellijk feedback of je lening haalbaar is en je kunt je aanvraag volledig digitaal afronden. Zelfs als je geen KBC-klant bent.








