Grond te koop in Vollezele met 3 slaapkamers
Omschrijving
Bouwgrond met plan en vergunning op een terrein van 749m²
Absolute topper! We treffen dit te bouwen nieuwbouwpand aan in de Rensbergstraat ter hoogte van huisnummer 21A te Vollezele.
We bieden een bouwgrond aan met plan en vergunning op een terrein van 749 m² .
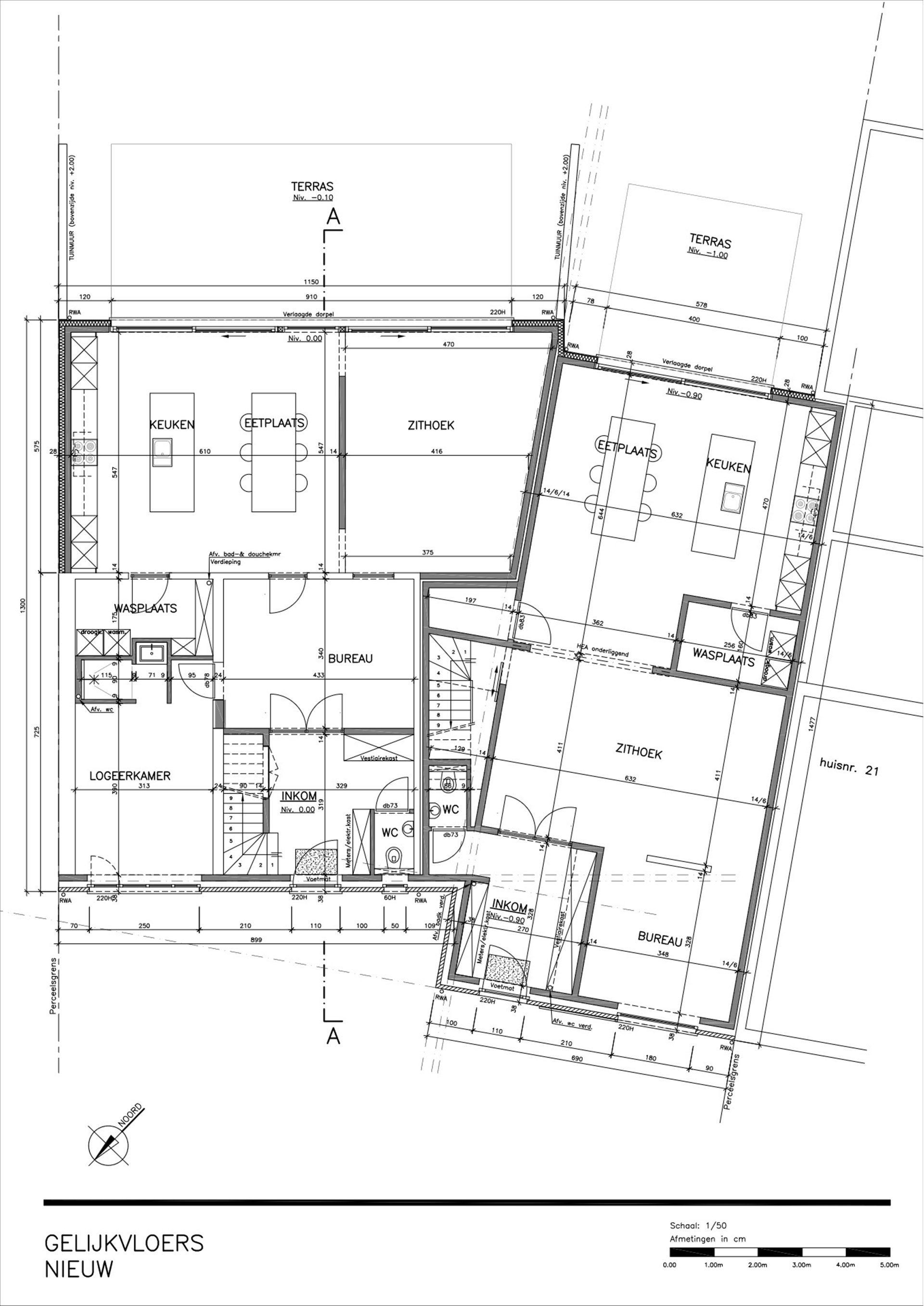
Het betreft de rechtse woning op de plannen (zie foto's), met een bewoonbare oppervlakte van ongeveer 160m².
Op de gelijkvloerse verdieping vinden we een ruime inkomhal met aansluitend een toilet. Hier aanpalend bevindt zich een bureelgedeelte. Vervolgens kunnen we de ruime leefruimte met aansluitend de eetplaats en een rijkelijk uitgeruste keuken vinden. Er is een groot terras en een grote tuin. Tot slot is aansluitend aan de keuken nog de wasplaats en een berging;
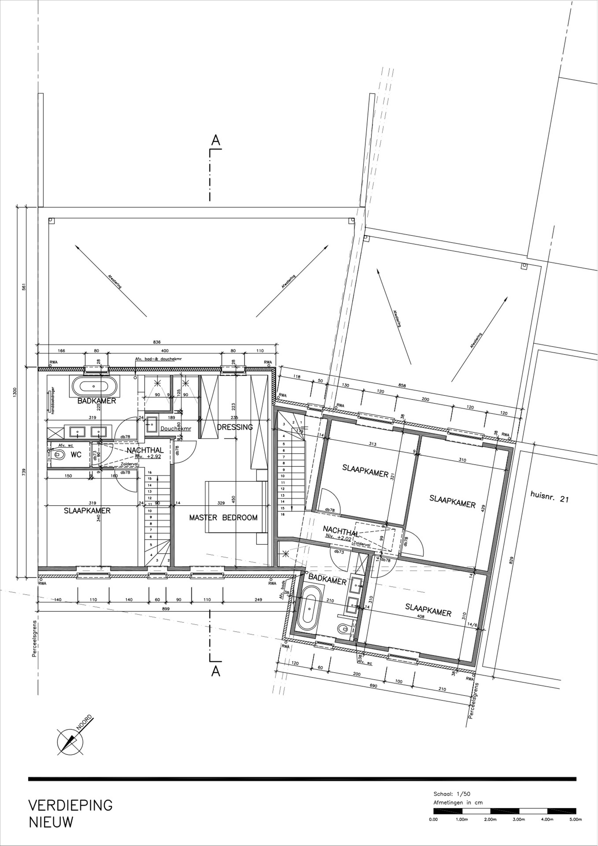
Op de eerste verdieping bevindt zich de nachthal, een badkamer met douche, ligbad en toilet en nog 3 slaapkamers.
De zolder zal toegankelijk zijn met een zolderluik.
Verkoop onder BTW-stelsel.
Voor meer informatie of een bezoek, contacteer Kristof van Immo Zone op het nummer 0484/ 84. 84. 86.
Gebouw
Terrein
Ligging
Indeling
Energie
Ruimtelijke ordening
Locatie
Rensbergstraat 21 A, 1570 VollezeleIs dit haalbaar voor jou?
Liever een voorstel op maat?
Vertel meer over je project en je persoonlijke situatie en KBC berekent je persoonlijke rentevoet. Je ontvangt onmiddellijk feedback of je lening haalbaar is en je kunt je aanvraag volledig digitaal afronden. Zelfs als je geen KBC-klant bent.








