Appartement te koop in Turnhout met 1 slaapkamer
€ 135.000
Is dit haalbaar voor jou?Omschrijving
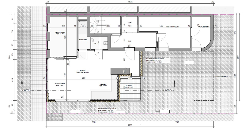
centraal gelegen, gelijkvloerse cascoruimte met vergunning appartement
Deze moderne, lichte casco ruimte is op wandelafstand van de Grote Markt van Turnhout. Voor de ruimte werd vergunning afgeleverd voor omvormen van handelsruimte tot een studio/appartement met aparte slaapkamer, woonkamer, open keuken, wc, douchekamer en terras. Ruime kelderberging inbegrepen. De vergunning wordt samen met de casco ruimte aangeboden aan de koper. Het gebouw beschikt over een gemeenschappelijke fietsen- en afvalberging. Aparte nutsmeters. Lift in het gebouw aanwezig. Aankoop van een autostaanplaats mogelijk (niet inbegrepen in verkoopprijs) Voor meer informatie of een plaatsbezoek kan u ons contacteren op 0473/45.77.37
Gebouw
Type pand
Appartement
Subtype
Appartement
Nieuw gebouw
Ja
Terrein
Meest recente bestemming terrein
Woongebied
Indeling
Aantal slaapkamers
1
Aantal badkamers
0
Aantal toiletten
0
Comfort
Lift
Ja
Aansluiting elektriciteit
Ja
Aansluiting gas
Ja
Energie
E-peil
0
Keuringsattest elektriciteit
Ja, niet conform
Ruimtelijke ordening
Verkavelingsvergunning
Nee
G(ebouw)-score
A (geen overstroming gemodelleerd)
P(erceel)-score
A (geen overstroming gemodelleerd)
Locatie
Witte weverspoort 3, 2300 Turnhout135.000 EUR
Locatie
Witte weverspoort 3
2300 Turnhout















