Grond te koop in Ruisbroek
€ 565.000
Is dit haalbaar voor jou?Omschrijving
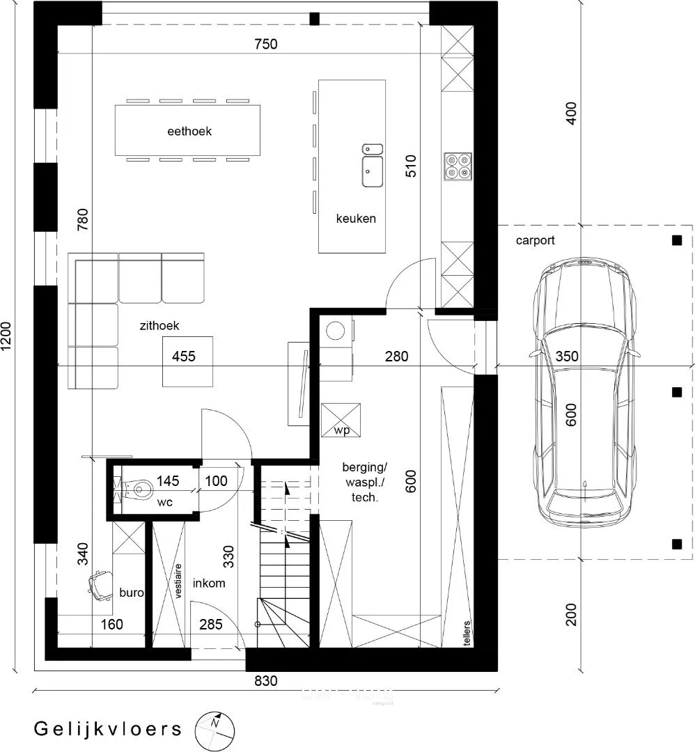
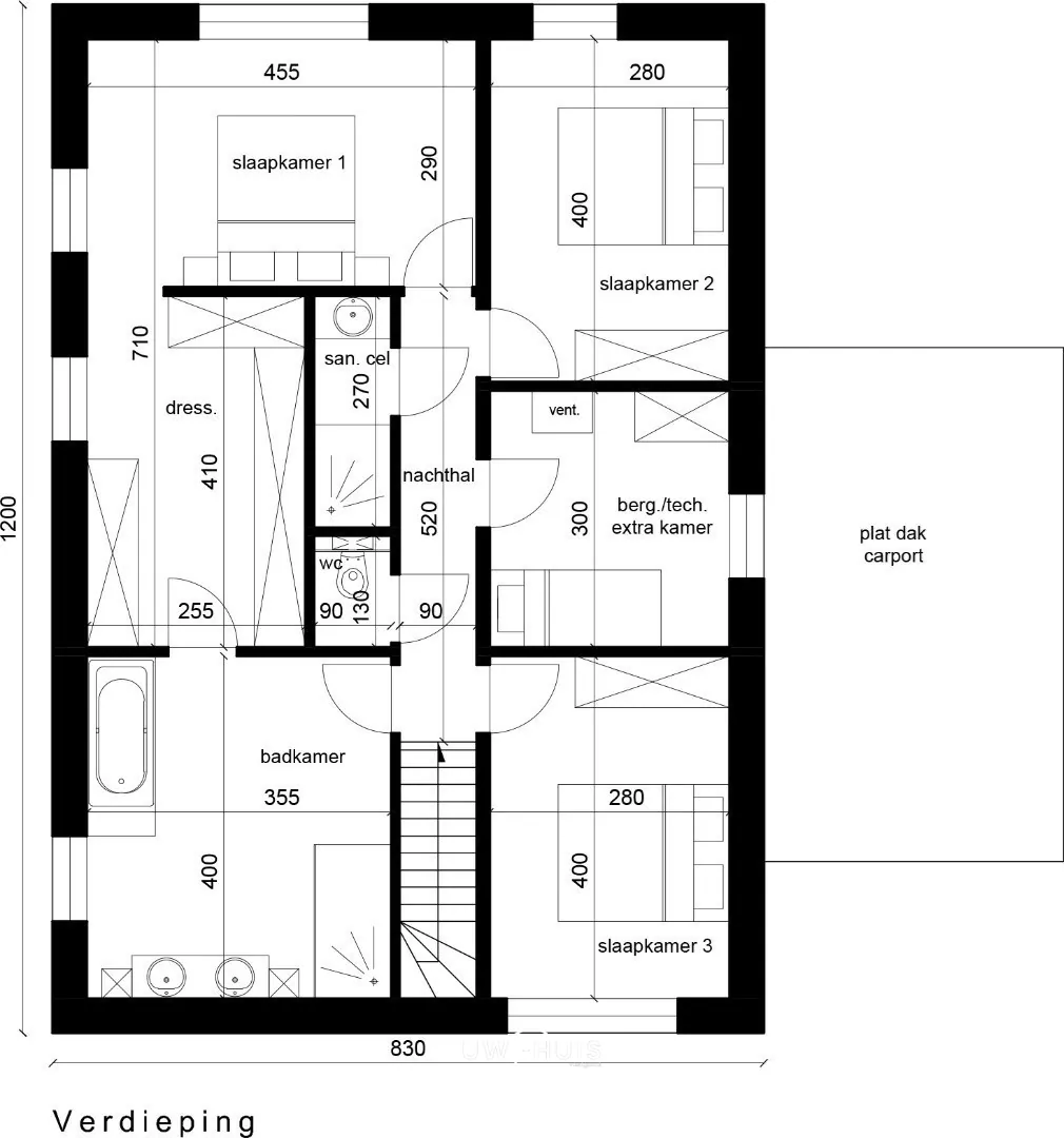
Bouwgrond voor open bebouwing op 748m2
Ontdek dit stuk grond, gelegen te Pullaarsteenweg. Ideaal om uw droomwoning (open bebouwing) hier te bouwen. Deze bouwgrond is 748m2 . Ook bieden wij hier een prachtig projectie op aan. Het is gelegen in een rustige en goed bereikbare buurt, nabij N16 en A12.
Voor meer informatie kan u ons uiteraard contacteren via het nummer: 052/46.38.03 of via de website.
Voor meer informatie kan u ons uiteraard contacteren via het nummer: 052/46.38.03 of via de website.
Financieel
Kadasteroppervlakte
748 m²
Beschikbaarheid
Vanaf akte
Terrein
Perceeloppervlakte
748 m²
Meest recente bestemming terrein
Woongebied met landelijk karakter
Breedte perceel
15 m
Ruimtelijke ordening
Dagvaarding
Ja
Dagvaarding
Geen rechterlijke herstelmaatregel of bestuurlijke maatregel opgelegd
Bouwvergunning
Ja
Locatie
Pullaarsteenweg 184, 2870 RuisbroekIs dit haalbaar voor jou?
Minimale eigen inbreng
-EUR
Maandlast
-EUR/maand
Liever een voorstel op maat?
Vertel meer over je project en je persoonlijke situatie en KBC berekent je persoonlijke rentevoet. Je ontvangt onmiddellijk feedback of je lening haalbaar is en je kunt je aanvraag volledig digitaal afronden. Zelfs als je geen KBC-klant bent.












