Grond te koop in Ruisbroek
€ 255.000
Is dit haalbaar voor jou?Omschrijving
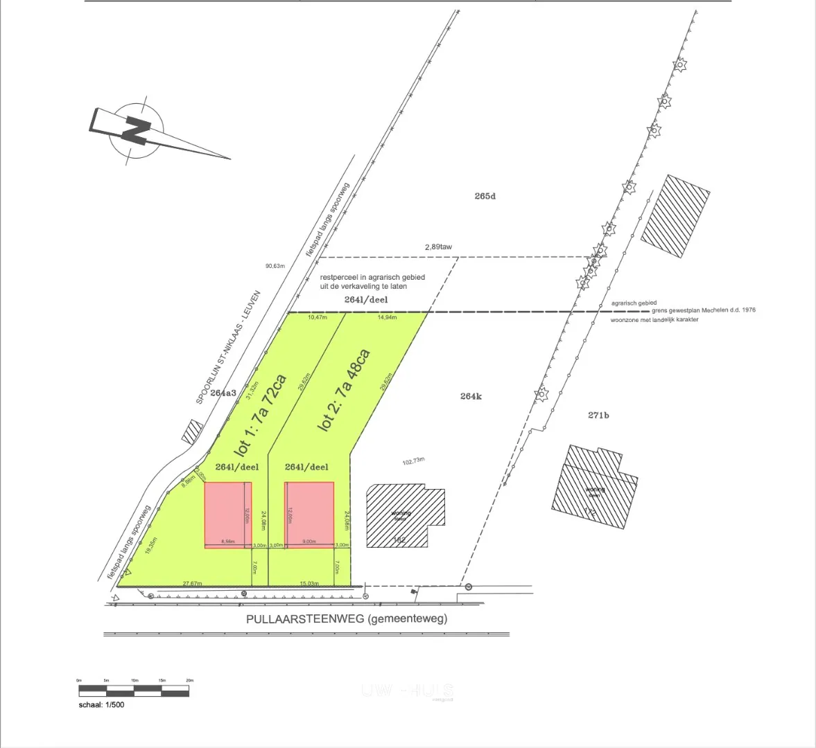
Bouwgrond voor open bebouwing op 772m
Bent u op zoek naar de perfecte plek om uw droomhuis te bouwen? Zoek niet verder! Wij bieden u een unieke kans om een stuk bouwgrond voor open bebouwing te bemachtigen van liefst 772m2. Deze bouwgrond is gelegen in een rustige en goed bereikbare buurt .Op 500m van N16 en A12.
Voor meer informatie kan u ons uiteraard contacteren via het nummer: 052/46.38.03 of via de website.
Voor meer informatie kan u ons uiteraard contacteren via het nummer: 052/46.38.03 of via de website.
Financieel
Kadasteroppervlakte
772 m²
Beschikbaarheid
Vanaf akte
Terrein
Perceeloppervlakte
772 m²
Meest recente bestemming terrein
Woongebied met landelijk karakter
Breedte perceel
27 m
Ruimtelijke ordening
Dagvaarding
Ja
Dagvaarding
Geen rechterlijke herstelmaatregel of bestuurlijke maatregel opgelegd
Bouwvergunning
Ja
Locatie
Pullaarsteenweg 186, 2870 RuisbroekIs dit haalbaar voor jou?
Minimale eigen inbreng
-EUR
Maandlast
-EUR/maand
Liever een voorstel op maat?
Vertel meer over je project en je persoonlijke situatie en KBC berekent je persoonlijke rentevoet. Je ontvangt onmiddellijk feedback of je lening haalbaar is en je kunt je aanvraag volledig digitaal afronden. Zelfs als je geen KBC-klant bent.










