Huis te koop in Scherpenheuvel met 3 slaapkamers
€ 429.000
Is dit haalbaar voor jou?Omschrijving
Woning met loods en aangrenzende bouwgrond te koop. 27 are
Zoek je een project met talloze mogelijkheden? Dit pand op de Mannenberg biedt je een zeldzame combinatie van een vrijstaande woning met grote loods (nummer 148) en een aanpalende bouwgrond voor open bebouwing (nummer146). De vraagprijs is voor het geheel, dus woning, loods en bouwgrond. De bouwgrond maakt momenteel deel uit van de mooi aangelegde tuin. Als je de grond nu niet zou bebouwen, blijft dit een uitstekende investering voor de toekomst. Achterliggend is alles agrarisch gebied, wat je zicht naar achteren toe vrijwaart. De grondoppervlakte van de bouwgrond is 1.324 m², de woning ligt op 1.373 m² grond, wat het geheel dus bijna 27 are groot maakt. Het geheel is gelegen aan een belangrijke invalsweg naar het centrum, en combineert een uitstekende visibiliteit met een vlotte ontsluiting dankzij de directe nabijheid van de snelweg.
Wat de bestaande woning écht bijzonder maakt, zijn de faciliteiten voor de actieve doe-het-zelver of zelfstandige. Je beschikt over een ruime loods met een achterliggende stockage ruimte, dan nog eens een grote garage en tot slot een ruime oprit waar je een 20-tal auto's kwijt kunt. De mooi aangelegde en volledig omheinde tuin is via een zijdelingse weg zelfs met een vrachtwagen bereikbaar, wat ideaal is voor leveringen of zwaar materieel.
De afmetingen van de vergunde bijgebouwen zijn:
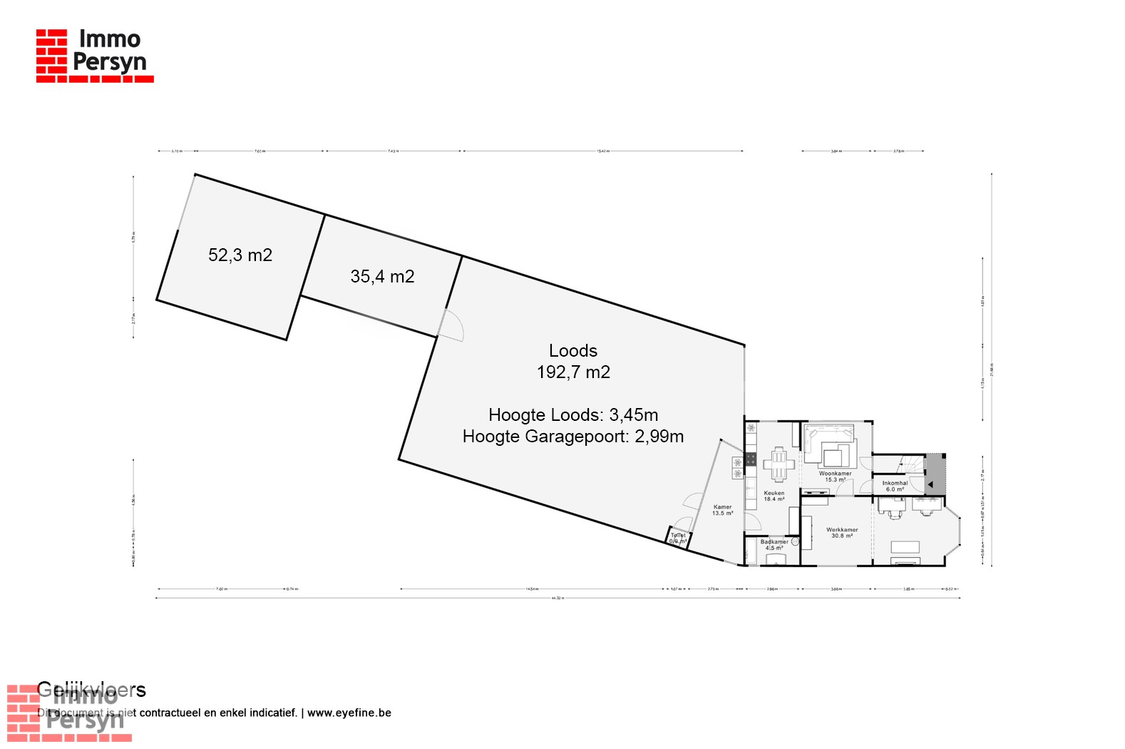
Gelijkvloers: inkom, woonkamer met open keuken, tweede woonkamer, bureau, badkamer, loods bestaande uit twee delen met smeerput, grote garage.
1ste verdieping: nachthal, 3 slaapkamers.
Tuin: prachtig aangelegde en volledig afgespannen tuin, zijdelings bereikbaar via erfdienstbaarheid.
Kelder: kelderruimte.
BOUWVOORSCHRIFTEN NAASTLIGGENDE GROND SAMENGEVAT:
Maak vandaag nog je afspraak.
Mail naar info@immopersyn.be of bel 013 444 008.
Wat de bestaande woning écht bijzonder maakt, zijn de faciliteiten voor de actieve doe-het-zelver of zelfstandige. Je beschikt over een ruime loods met een achterliggende stockage ruimte, dan nog eens een grote garage en tot slot een ruime oprit waar je een 20-tal auto's kwijt kunt. De mooi aangelegde en volledig omheinde tuin is via een zijdelingse weg zelfs met een vrachtwagen bereikbaar, wat ideaal is voor leveringen of zwaar materieel.
De afmetingen van de vergunde bijgebouwen zijn:
- Een loods van maar liefst 193 m² met een bruikbare hoogte van 3,45 meter en een poorthoogte van 2,99 meter;
- Een tweede stockageruimte achterliggend van 35 m²;
- En achterliggend nog een garage van 52 m².
Gelijkvloers: inkom, woonkamer met open keuken, tweede woonkamer, bureau, badkamer, loods bestaande uit twee delen met smeerput, grote garage.
1ste verdieping: nachthal, 3 slaapkamers.
Tuin: prachtig aangelegde en volledig afgespannen tuin, zijdelings bereikbaar via erfdienstbaarheid.
Kelder: kelderruimte.
BOUWVOORSCHRIFTEN NAASTLIGGENDE GROND SAMENGEVAT:
- Voor open bebouwing, 2 bouwlagen met dak.
- Maximale gevelbreedte: 6,60 meter.
- Maximale bouwdiepte gelijkvloers: 17 meter.
- Maximale bouwdiepte verdiep: 12 meter.
- Maximale kroonlijsthoogte 5,5 meter, maximale nokhoogte 8,50 meter.
- Een vrijstaand bijgebouw van maximaal 40 m².
Maak vandaag nog je afspraak.
Mail naar info@immopersyn.be of bel 013 444 008.
Financieel
Kadastraal inkomen
815 €
Beschikbaarheid
Vanaf akte
Gebouw
Type pand
Huis
Subtype
Huis
Bewoonbare oppervlakte
128 m²
Terrein
Perceeloppervlakte
2.697 m²
Meest recente bestemming terrein
Woongebied met landelijk karakter
Oriëntatie tuin
Zuid
Indeling
Aantal slaapkamers
3
Aantal badkamers
1
Aantal toiletten
0
Comfort
Lift
Nee
Aansluiting elektriciteit
Ja
Aansluiting gas
Ja
Energie
EPC-score (kWh/(m² jaar))
933
EPC-label
F
Unieke code EPC
20240324-0003186941-RES-1
Ruimtelijke ordening
Verkavelingsvergunning
Nee
Voorkooprecht
Ja
G(ebouw)-score
A (geen overstroming gemodelleerd)
Locatie
Mannenberg 146 -148, 3270 ScherpenheuvelIs dit haalbaar voor jou?
Minimale eigen inbreng
-EUR
Maandlast
-EUR/maand
Liever een voorstel op maat?
Vertel meer over je project en je persoonlijke situatie en KBC berekent je persoonlijke rentevoet. Je ontvangt onmiddellijk feedback of je lening haalbaar is en je kunt je aanvraag volledig digitaal afronden. Zelfs als je geen KBC-klant bent.















