Huis te koop in Hasselt met 3 slaapkamers
€ 498.054
Is dit haalbaar voor jou?Omschrijving
Nieuwbouwwoning Zolderse Kiezel 19 3500 Hasselt
Laat je bouwdroom werkelijkheid worden op deze mooie en centraal gelegen bouwgrond in Tuilt (Hasselt).
Een prachtig perceel van 9 are, gelegen in de Zolders Kiezel te Tuilt. De tuin kent een ideale zuid- west oriëntatie en ligt op wandelafstand van het centrum van Tuilt.
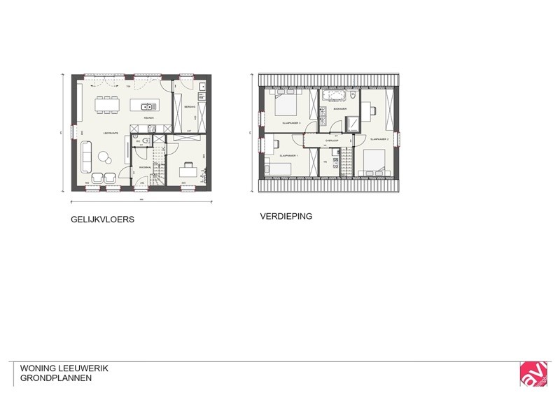
In samenwerking met ERA NOBIS te Herk-de-Stad, biedt AVL de mogelijkheid tot het bouwen van een woning, volledig naar eigen wensen. Het voorbeeld op de website is een woning van 163m2 met een open leefruimte en bureau op het gelijkvloers. Boven vinden we 3 ruime slaapkamers en een badkamer met bad en douche terug.
De woning bied je alvast alle zekerheden en garanties inzake EPB waarden. We geven je graag uitgebreid uitleg over de vele mogelijkheden in een persoonlijk gesprek.
Dit project realiseren wij in samenwerking met ERA Nobis te Herk-de-Stad
Meer info neem contact op met bouwadviseur Geert 011/450 280
SLEUTEL-OP-DE-DEURAFWERKING
Ruwbouw winddicht
Sanitaire leidingen (inclusief hergebruik van regenwater)
Elektriciteit
Vloerverwarming
Warmtepomp
Pleisterwerken
Isolatiewerken en chape
EPB berekening
Ventilatiesysteem D+
Kostprijs architect en veiligheidscoördinatie inclusief
Zonnepanelen
Afgewerkte keuken
Badkamer
Tegelvloeren op het gelijkvloers en in de badkamer
Binnendeuren in tubespaan, reeds voor geschilderd
trap in rubberwood
Voegwerken
PRIJS SLEUTEL OP DE DEUR
€ 498 054 excl. alle kosten op grond en constructie
€ 589 145 incl. alle kosten op grond en constructie
Een prachtig perceel van 9 are, gelegen in de Zolders Kiezel te Tuilt. De tuin kent een ideale zuid- west oriëntatie en ligt op wandelafstand van het centrum van Tuilt.
In samenwerking met ERA NOBIS te Herk-de-Stad, biedt AVL de mogelijkheid tot het bouwen van een woning, volledig naar eigen wensen. Het voorbeeld op de website is een woning van 163m2 met een open leefruimte en bureau op het gelijkvloers. Boven vinden we 3 ruime slaapkamers en een badkamer met bad en douche terug.
De woning bied je alvast alle zekerheden en garanties inzake EPB waarden. We geven je graag uitgebreid uitleg over de vele mogelijkheden in een persoonlijk gesprek.
Dit project realiseren wij in samenwerking met ERA Nobis te Herk-de-Stad
Meer info neem contact op met bouwadviseur Geert 011/450 280
SLEUTEL-OP-DE-DEURAFWERKING
Ruwbouw winddicht
Sanitaire leidingen (inclusief hergebruik van regenwater)
Elektriciteit
Vloerverwarming
Warmtepomp
Pleisterwerken
Isolatiewerken en chape
EPB berekening
Ventilatiesysteem D+
Kostprijs architect en veiligheidscoördinatie inclusief
Zonnepanelen
Afgewerkte keuken
Badkamer
Tegelvloeren op het gelijkvloers en in de badkamer
Binnendeuren in tubespaan, reeds voor geschilderd
trap in rubberwood
Voegwerken
PRIJS SLEUTEL OP DE DEUR
€ 498 054 excl. alle kosten op grond en constructie
€ 589 145 incl. alle kosten op grond en constructie
Gebouw
Type pand
Huis
Subtype
Huis
Nieuw gebouw
Ja
Indeling
Aantal slaapkamers
3
Aantal badkamers
1
Aantal toiletten
0
Comfort
Lift
Nee
Energie
E-peil
0
Zonnepanelen
Ja
Keuringsattest elektriciteit
Ja, niet conform
Locatie
Kiezelstraat 19, 3500 Hasselt498.054 EUR
Locatie
Kiezelstraat 19
3500 Hasselt
Is dit haalbaar voor jou?
Minimale eigen inbreng
-EUR
Maandlast
-EUR/maand
Liever een voorstel op maat?
Vertel meer over je project en je persoonlijke situatie en KBC berekent je persoonlijke rentevoet. Je ontvangt onmiddellijk feedback of je lening haalbaar is en je kunt je aanvraag volledig digitaal afronden. Zelfs als je geen KBC-klant bent.
















