Huis te koop in Gits met 3 slaapkamers
€ 392.709
Is dit haalbaar voor jou?Omschrijving
Gits (Hooglede), Middenstr-Tillostr-V.Maerlantstr - Fase 1: Lot 09
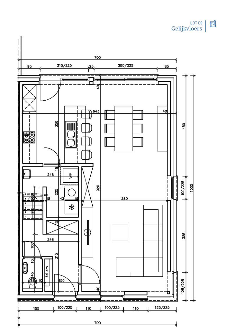
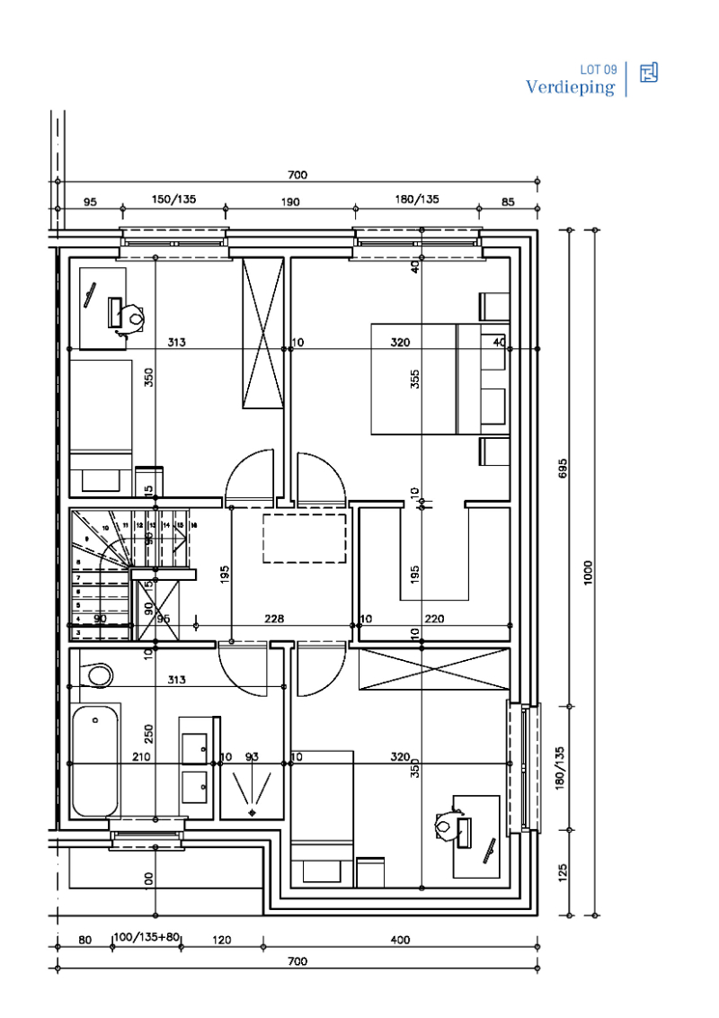
ENERGIEZUINIG WONEN - VASTE PRIJS - ALL IN AFWERKING OP MAAT! In Gits (deelgemeente van Hooglede) bouwen wij in een rustig gelegen nieuwbouwwijk 6 woningen. Deze halfopen woning (LOT 9) is gelegen op een perceel van 378m2. De woning is voorzien van een doordachte planindeling met veel lichtinval en een optimale ruimtebenutting. Op het gelijkvloers is er een inkom met gastentoilet, een ruime leefruimte met open keuken en een praktische was/bergplaats. Op de eerste verdieping bevinden zich 3 slaapkamers, een dressing en een badkamer met bad+inloopdouche. De praktische zolder is bereikbaar met een uitschuifbare zoldertrap. In deze VASTE PRIJS zijn alle energiezuinige technieken (warmtepomp, zonnepanelen, ventilatie D, vloerverwarming op beide verdiepingen,...) én ruime afwerkingsbudgetten (keuken, badkamer, vloeren, deuren,...) inbegrepen! Zie jij jezelf hier wonen? Bel Ewout op 0497 588 888 of mail naar contact@huysmanbouw.be voor meer informatie. Meer info over het project op huysmanbouw.be
Financieel
Verkoop onder btw-stelsel
Ja
Waarde constructie
24.588 €
Waarde grond
90.412 €
Gebouw
Type pand
Huis
Subtype
Huis
Nieuw gebouw
Ja
Terrein
Perceeloppervlakte
378 m²
Indeling
Aantal slaapkamers
3
Dressing
Ja
Oppervlakte dressing
1 m²
Comfort
Lift
Nee
Aansluiting elektriciteit
Ja
Aansluiting riolering
Ja
Energie
E-peil
0
Zonnepanelen
Ja
Keuringsattest elektriciteit
Ja, niet conform
Ruimtelijke ordening
Verkavelingsvergunning
Nee
Voorkooprecht
Nee
Beschermd erfgoed
Nee
Locatie
Middenstraat, 8830 Gits392.709 EUR
Locatie
Middenstraat
8830 Gits














