Huis te koop in Oudenaarde met 2 slaapkamers
€ 441.056
Is dit haalbaar voor jou?Omschrijving
Modern huis met 2 slaapkamers en 2 badkamers – Nieuwbouwproject Ernest, Oudenaarde
Deze moderne woning maakt deel uit van het nieuwbouwproject Ernest in Oudenaarde – een eigentijdse en duurzame woonontwikkeling op een gunstige locatie.
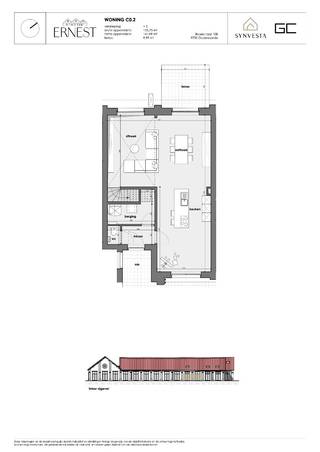
Op het gelijkvloers komt u binnen via een uitnodigende inkomhal met een apart toilet, een ruime berging, een comfortabele slaapkamer en een badkamer uitgerust met een douche en dubbele wastafel.
De eerste verdieping biedt een nachthal, een tweede apart toilet, een slaapkamer met aansluitende dressing en een eigen badkamer met inloopdouche en dubbele wastafel.
Vervolgens betreedt u de lichtrijke leefruimte met open keuken – het kloppend hart van de woning. Dankzij de grote raampartijen baadt de ruimte in natuurlijk licht en is er een directe verbinding met het aangename terras, ideaal voor een ontspannen moment of een gezellig diner in de buitenlucht.
Een bijkomende troef is de aangename groenzone, die rust en privacy biedt en het buitengevoel versterkt.
Deze woning combineert hedendaagse architectuur met functioneel wooncomfort – perfect voor wie modern en flexibel wil wonen.
Alle oppervlaktes zijn BVO. EPC en KI zijn nog niet gekend.
De foto’s zijn louter illustratief.
Op het gelijkvloers komt u binnen via een uitnodigende inkomhal met een apart toilet, een ruime berging, een comfortabele slaapkamer en een badkamer uitgerust met een douche en dubbele wastafel.
De eerste verdieping biedt een nachthal, een tweede apart toilet, een slaapkamer met aansluitende dressing en een eigen badkamer met inloopdouche en dubbele wastafel.
Vervolgens betreedt u de lichtrijke leefruimte met open keuken – het kloppend hart van de woning. Dankzij de grote raampartijen baadt de ruimte in natuurlijk licht en is er een directe verbinding met het aangename terras, ideaal voor een ontspannen moment of een gezellig diner in de buitenlucht.
Een bijkomende troef is de aangename groenzone, die rust en privacy biedt en het buitengevoel versterkt.
Deze woning combineert hedendaagse architectuur met functioneel wooncomfort – perfect voor wie modern en flexibel wil wonen.
Alle oppervlaktes zijn BVO. EPC en KI zijn nog niet gekend.
De foto’s zijn louter illustratief.
Gebouw
Type pand
Huis
Subtype
Huis
Bewoonbare oppervlakte
162,45 m²
Terrein
Meest recente bestemming terrein
Woongebied
Tuin
Ja
Indeling
Aantal slaapkamers
2
Aantal badkamers
2
Keuken
Ja
Comfort
Parlofoon
Ja
Energie
EPC-label
A
Zonnepanelen
Ja
Type beglazing
Driedubbel glas
Ruimtelijke ordening
Dagvaarding
Geen rechterlijke herstelmaatregel of bestuurlijke maatregel opgelegd
Bouwvergunning
Ja
Voorkooprecht
Nee
Locatie
Broekstraat 108, 9700 Oudenaarde441.056 EUR
Locatie
Broekstraat 108
9700 Oudenaarde















