Huis te koop in Oudenaarde met 2 slaapkamers
€ 437.896
Is dit haalbaar voor jou?Omschrijving
Modern huis met 2 slaapkamers, vide en speel- of leeshoek – Nieuwbouwproject Ernest, Oudenaarde
Deze moderne woning maakt deel uit van het nieuwbouwproject Ernest in Oudenaarde – een eigentijdse en duurzame woonontwikkeling op een gunstige locatie.
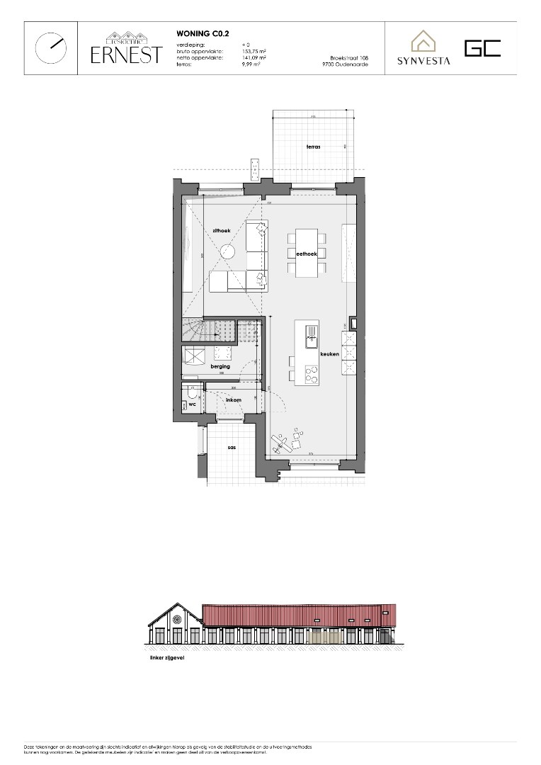
Op het gelijkvloers komt u binnen via de inkomhal met een apart toilet en ruime berging. Van daaruit stapt u binnen in de lichtrijke leefruimte met open keuken – het kloppend hart van de woning. Grote raampartijen zorgen voor een directe verbinding met het aangename terras, ideaal voor een ontspannen moment of een diner in de buitenlucht.
De eerste verdieping omvat een nachthal, een apart toilet en een moderne badkamer met ligbad en dubbele wastafel. Daarnaast zijn er twee volwaardige slaapkamers, een open vide en een extra ruimte die perfect dienst kan doen als speel- of leeshoek – een veelzijdige aanvulling op het wooncomfort.
Een bijkomende troef is de aangename groenzone, die rust en privacy biedt en het buitengevoel versterkt.
Deze woning combineert hedendaagse architectuur met functioneel wooncomfort – perfect voor wie modern en flexibel wil wonen.
Alle oppervlaktes zijn BVO. EPC en KI zijn nog niet gekend.
De foto’s zijn louter illustratief.
Op het gelijkvloers komt u binnen via de inkomhal met een apart toilet en ruime berging. Van daaruit stapt u binnen in de lichtrijke leefruimte met open keuken – het kloppend hart van de woning. Grote raampartijen zorgen voor een directe verbinding met het aangename terras, ideaal voor een ontspannen moment of een diner in de buitenlucht.
De eerste verdieping omvat een nachthal, een apart toilet en een moderne badkamer met ligbad en dubbele wastafel. Daarnaast zijn er twee volwaardige slaapkamers, een open vide en een extra ruimte die perfect dienst kan doen als speel- of leeshoek – een veelzijdige aanvulling op het wooncomfort.
Een bijkomende troef is de aangename groenzone, die rust en privacy biedt en het buitengevoel versterkt.
Deze woning combineert hedendaagse architectuur met functioneel wooncomfort – perfect voor wie modern en flexibel wil wonen.
Alle oppervlaktes zijn BVO. EPC en KI zijn nog niet gekend.
De foto’s zijn louter illustratief.
Gebouw
Type pand
Huis
Subtype
Huis
Bewoonbare oppervlakte
153,75 m²
Terrein
Meest recente bestemming terrein
Woongebied
Tuin
Ja
Indeling
Aantal slaapkamers
2
Aantal badkamers
1
Keuken
Ja
Comfort
Parlofoon
Ja
Energie
EPC-label
A
Zonnepanelen
Ja
Type beglazing
Driedubbel glas
Ruimtelijke ordening
Dagvaarding
Geen rechterlijke herstelmaatregel of bestuurlijke maatregel opgelegd
Bouwvergunning
Ja
Voorkooprecht
Nee
Locatie
Broekstraat 108, 9700 Oudenaarde437.896 EUR
Locatie
Broekstraat 108
9700 Oudenaarde















