Huis te koop in Evergem met 4 slaapkamers
€ 440.441
Is dit haalbaar voor jou?Omschrijving
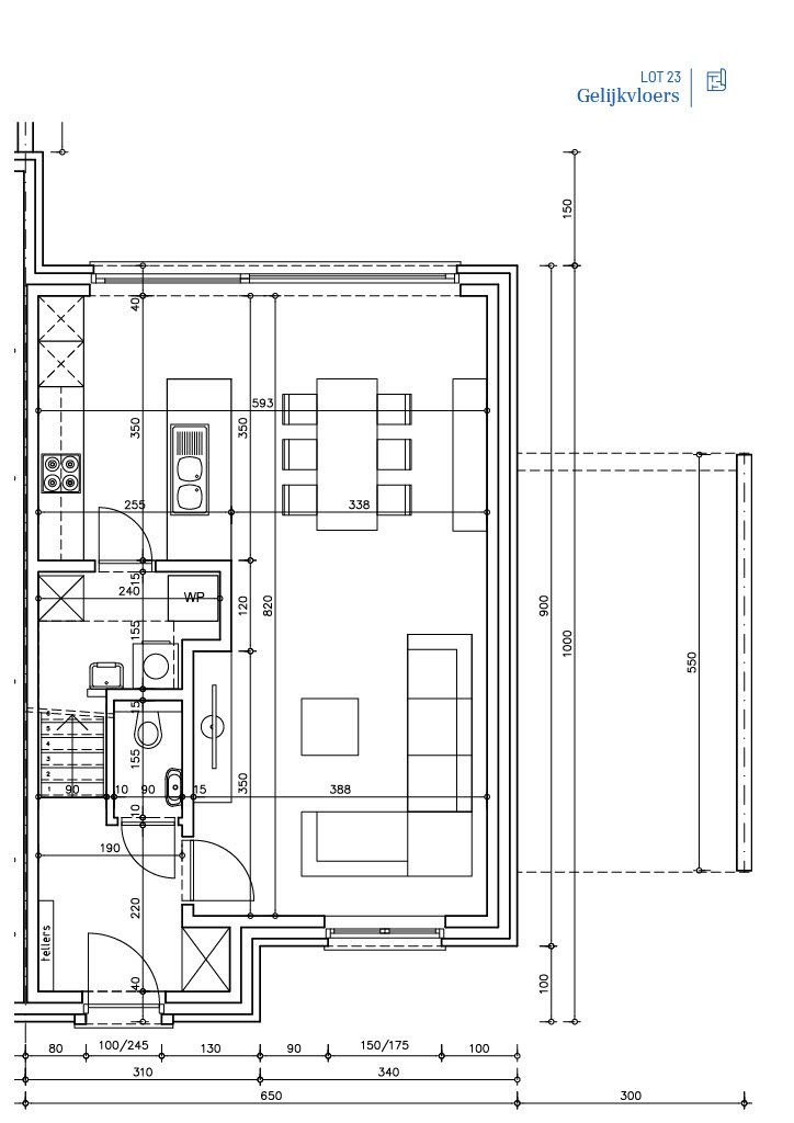
Evergem, Boordekens - Fase 1: Lot 23
Ontdek de charme van deze energiezuinige E30 nieuwbouwwoning in het hart van Evergem – een waar pareltje onder de woningen! Genesteld op een royaal perceel van 329m2, met een oostelijke oriëntatie, wordt deze woning volledig afgestemd op jouw wensen en behoeften. Tevens valt de woning onder 6% BTW. De woning onderscheidt zich door een doordachte indeling op het gelijkvloers met een ruime inkom voorzien van mogelijkheden voor een grote vestiairekast en een gastentoilet. Daarnaast biedt het gelijkvloers een open keuken en een leefruimte met natuurlijk licht evenals een handige grote wasplaats. De eerste verdieping verwelkomt je met 3 slaapkamers, een badkamer compleet met zowel een bad als een douche en voorzien van een vaste trap naar de zolder. Deze tot in de puntjes afgewerkte woning straalt praktisch comfort uit. Benieuwd en klaar om je droomhuis te ontdekken? Aarzel niet en neem contact met Ewout via 0497 588 888 of e-mail naar contact@huysmanbouw.be
Financieel
Verkoop onder btw-stelsel
Ja
Waarde constructie
42.441 €
Waarde grond
94.409 €
Gebouw
Type pand
Huis
Subtype
Huis
Nieuw gebouw
Ja
Terrein
Perceeloppervlakte
329 m²
Meest recente bestemming terrein
Woonuitbreidingsgebied
Oriëntatie tuin
Oost
Indeling
Aantal slaapkamers
4
Aantal badkamers
0
Aantal toiletten
0
Comfort
Lift
Nee
Energie
EPC-label
A
E-peil
0
Keuringsattest elektriciteit
Ja, conform
Ruimtelijke ordening
Verkavelingsvergunning
Ja
Voorkooprecht
Nee
Beschermd erfgoed
Nee
Locatie
Boordekens 16, 9940 EvergemIs dit haalbaar voor jou?
Minimale eigen inbreng
-EUR
Maandlast
-EUR/maand
Liever een voorstel op maat?
Vertel meer over je project en je persoonlijke situatie en KBC berekent je persoonlijke rentevoet. Je ontvangt onmiddellijk feedback of je lening haalbaar is en je kunt je aanvraag volledig digitaal afronden. Zelfs als je geen KBC-klant bent.














